A közvetítői szolgáltatásunk teljes mértékben díjmentes az érdeklődők számára.
Nem kötődünk egyetlen gyártóhoz vagy kivitelezőhöz sem. Az ország számos szakértő kivitelezője közül segítünk kiválasztani az Ön igényeinek leginkább megfelelő partnert.
Csak olyan kivitelezőkkel működünk együtt, akik többéves szakmai tapasztalattal és hiteles referenciákkal rendelkeznek, ezzel garantálva a megbízhatóságot.
Szerkezetkész ár
Paraméterek
m²
Leírás
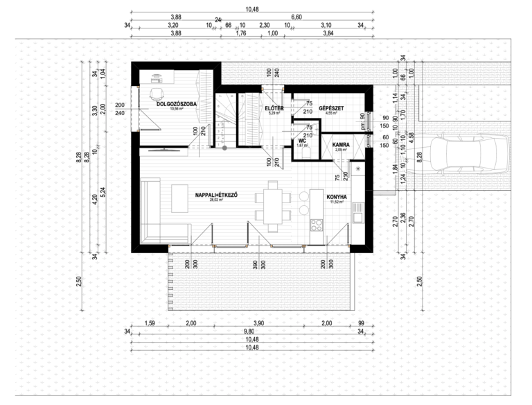
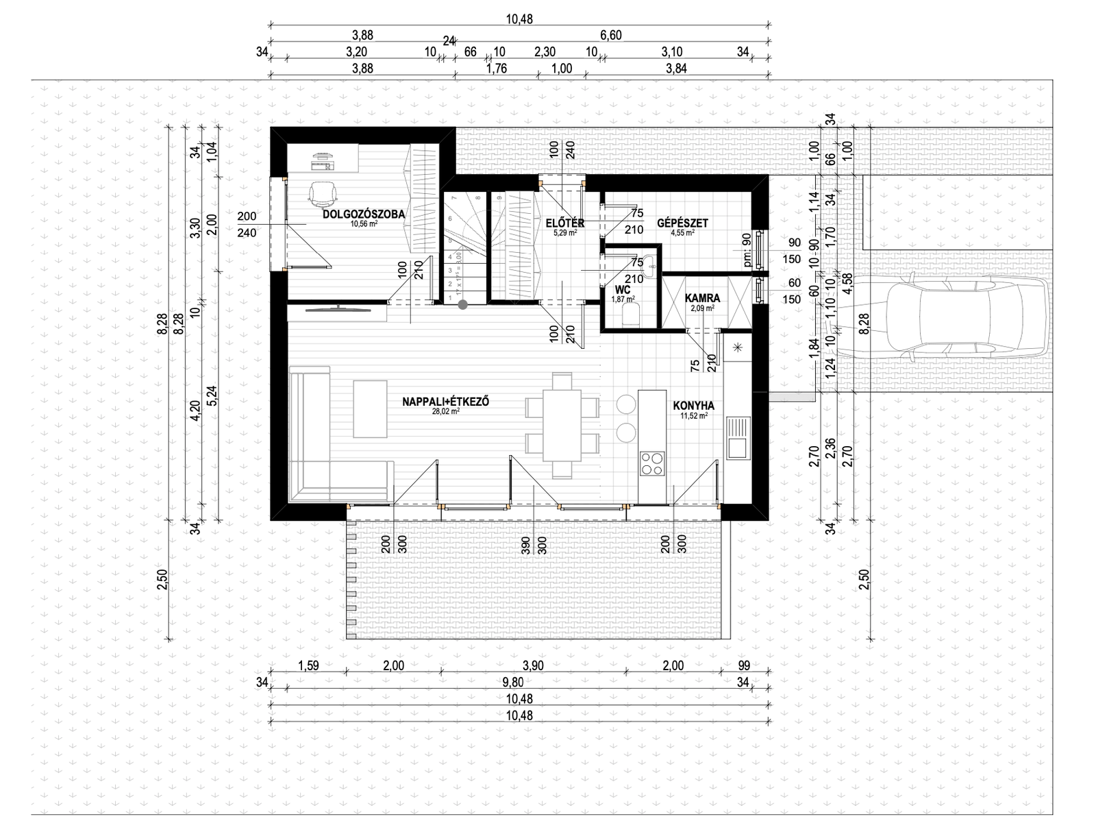
Képzelje el, hogy egy olyan otthonba lép be, ahol a tágas, fényárban úszó közösségi tér azonnal magával ragadja! A Salsa házban a nappali, az étkező és a konyha egyetlen, hatalmas teret alkot, amely tökéletes helyszíne a nagy családi összejöveteleknek, a baráti beszélgetéseknek vagy a közös vasárnapi ebédeknek. A földszinten egy külön dolgozószoba is helyet kapott, így a home office is kényelmesen megoldható anélkül, hogy a családi élettől kellene elvonulnia. A konyhából nyíló praktikus kamra és a különálló mellékhelyiség mind a hétköznapok kényelmét szolgálják.
Az emelet a nyugalom szigete. Itt három tágas hálószoba várja a család tagjait, ahol mindenki megtalálhatja a saját, privát kuckóját. A szülői hálószobához egy saját gardrób és egy külön fürdőszoba is tartozik, ami igazi luxust csempész a mindennapokba. A gyerekeknek vagy a vendégeknek sem kell sorban állniuk, hiszen az emeleten egy második, kádas fürdőszoba is rendelkezésre áll. Ezt a házat elsősorban 4-5 fős családoknak ajánljuk, akik egy modern, jól átgondolt elrendezésű, tágas otthonra vágynak, ahol a közösségi élet és a privát szféra tökéletes egyensúlyban van.
A Salsa ház a legmodernebb Hőszigetelt Építési Tábla (HÉT) technológiával épül, amely világszerte SIP panelként ismert. Ennek a technológiának köszönhetően a ház szerkezete akár néhány nap alatt felépíthető. Az előregyártott panelek kiváló hőszigetelést és légtömörséget biztosítanak, így a fűtési és hűtési költségek drasztikusan csökkennek, otthona energiahatékonysága pedig a passzívházak szintjét közelíti meg. Mivel a falszerkezet vékonyabb, mint a hagyományos téglaházaknál, akár 10% plusz hasznos alapterületet is nyerhet, így minden négyzetmétert kihasználhat.
Ez a ház nem csupán egy épület, hanem egy életérzés: a modern kényelem, az energiahatékonyság és a családi harmónia tökéletes ötvözete. Tegye meg az első lépést álmai otthona felé, és kérjen ingyenes konzultációt kollégánktól!
Alaprajz
Kattintson az alaprajzra a nagyobb mérethez!
A Király Házak egyedi igényeket is figyelembe vesz, így a kivitelezés bizonyos részei változtathatók (pl.: szigetelés típus, hőszivattyú típus, falak színe…) Ezek a módosítások árváltozással járhatnak.
A teljes műszaki tartalom itt érhető el.
A Király Házak egyedi igényeket is figyelembe vesz, így a kivitelezés bizonyos részei változtathatók (pl.: szigetelés típus, hőszivattyú típus, falak színe…) Ezek a módosítások árváltozással járhatnak.
A teljes műszaki tartalom itt érhető el.
A Király Házak egyedi igényeket is figyelembe vesz, így a kivitelezés bizonyos részei változtathatók (pl.: szigetelés típus, hőszivattyú típus, falak színe…) Ezek a módosítások árváltozással járhatnak.
A teljes műszaki tartalom itt érhető el.
Építési technológia


A SIP-panel (ami a Structural Insulated Panel rövidítése) egy modern, nagyteljesítményű építőanyag, amelyet leginkább egy óriási, rendkívül erős szendvicshez lehetne hasonlítani. A „szendvics” két külső rétege jellemzően valamilyen fa alapú lap (leggyakrabban OSB), a belseje pedig egy vastag, kemény szigetelőhab (általában expandált polisztirol, vagyis EPS), amelyet gyári körülmények között, nagy nyomáson ragasztanak össze.
Ez a szerkezet adja a technológia legnagyobb előnyeit. A panelek egyszerre látják el a teherhordó fal, a külső borítás és a hőszigetelés feladatát, egyetlen elemmé sűrítve a hagyományos építkezés több fázisát. Ennek köszönhetően a SIP-házak építése rendkívül gyors – a méretpontosra gyártott elemeket a helyszínen már csak össze kell szerelni, akár egy legót.
Az eredmény egy kivételesen stabil, légtömör és energiahatékony otthon. A megszakítás nélküli, vastag szigetelőmag miatt a SIP-házak fűtési és hűtési költségei rendkívül alacsonyak, az építési technológia pedig környezetbarát, mivel kevesebb hulladékkal jár. Egyszerűsége és hatékonysága miatt egyre népszerűbb választás világszerte.

Miért rajtunk keresztül vegye fel a kapcsolatot a kivitelezővel?
A közvetítői szolgáltatásunk teljes mértékben díjmentes az érdeklődők számára.
Nem kötődünk egyetlen gyártóhoz vagy kivitelezőhöz sem. Az ország számos szakértő kivitelezője közül segítünk kiválasztani az Ön igényeinek leginkább megfelelő partnert.
Csak olyan kivitelezőkkel működünk együtt, akik többéves szakmai tapasztalattal és hiteles referenciákkal rendelkeznek, ezzel garantálva a megbízhatóságot.

Ha rajtunk keresztül rendeli meg, akkor 100.000 Ft-os IKEA vásárlási utalványt adunk ajándékba!
Azok számára, akik rajtunk keresztül veszik fel a kapcsolatot egy kivitelezővel, nemcsak az ingyenes tanácsadás előnyeit biztosítjuk, hanem egy 100 000 Ft értékű IKEA ajándékkártyával is megajándékozzuk, amennyiben szerződéskötésre kerül sor. Bővebben itt!

100 000Ft értékű IKEA kupont adunk ajándékba!
További részletek
Leírás
Képzelje el, hogy egy olyan otthonba lép be, ahol a tágas, fényárban úszó közösségi tér azonnal magával ragadja! A Salsa házban a nappali, az étkező és a konyha egyetlen, hatalmas teret alkot, amely tökéletes helyszíne a nagy családi összejöveteleknek, a baráti beszélgetéseknek vagy a közös vasárnapi ebédeknek. A földszinten egy külön dolgozószoba is helyet kapott, így a home office is kényelmesen megoldható anélkül, hogy a családi élettől kellene elvonulnia. A konyhából nyíló praktikus kamra és a különálló mellékhelyiség mind a hétköznapok kényelmét szolgálják.
Az emelet a nyugalom szigete. Itt három tágas hálószoba várja a család tagjait, ahol mindenki megtalálhatja a saját, privát kuckóját. A szülői hálószobához egy saját gardrób és egy külön fürdőszoba is tartozik, ami igazi luxust csempész a mindennapokba. A gyerekeknek vagy a vendégeknek sem kell sorban állniuk, hiszen az emeleten egy második, kádas fürdőszoba is rendelkezésre áll. Ezt a házat elsősorban 4-5 fős családoknak ajánljuk, akik egy modern, jól átgondolt elrendezésű, tágas otthonra vágynak, ahol a közösségi élet és a privát szféra tökéletes egyensúlyban van.
A Salsa ház a legmodernebb Hőszigetelt Építési Tábla (HÉT) technológiával épül, amely világszerte SIP panelként ismert. Ennek a technológiának köszönhetően a ház szerkezete akár néhány nap alatt felépíthető. Az előregyártott panelek kiváló hőszigetelést és légtömörséget biztosítanak, így a fűtési és hűtési költségek drasztikusan csökkennek, otthona energiahatékonysága pedig a passzívházak szintjét közelíti meg. Mivel a falszerkezet vékonyabb, mint a hagyományos téglaházaknál, akár 10% plusz hasznos alapterületet is nyerhet, így minden négyzetmétert kihasználhat.
Ez a ház nem csupán egy épület, hanem egy életérzés: a modern kényelem, az energiahatékonyság és a családi harmónia tökéletes ötvözete. Tegye meg az első lépést álmai otthona felé, és kérjen ingyenes konzultációt kollégánktól!
Alaprajz
A Király Házak egyedi igényeket is figyelembe vesz, így a kivitelezés bizonyos részei változtathatók (pl.: szigetelés típus, hőszivattyú típus, falak színe…) Ezek a módosítások árváltozással járhatnak.
A teljes műszaki tartalom itt érhető el.
A Király Házak egyedi igényeket is figyelembe vesz, így a kivitelezés bizonyos részei változtathatók (pl.: szigetelés típus, hőszivattyú típus, falak színe…) Ezek a módosítások árváltozással járhatnak.
A teljes műszaki tartalom itt érhető el.
A Király Házak egyedi igényeket is figyelembe vesz, így a kivitelezés bizonyos részei változtathatók (pl.: szigetelés típus, hőszivattyú típus, falak színe…) Ezek a módosítások árváltozással járhatnak.
A teljes műszaki tartalom itt érhető el.
Technológia
A SIP-panel (ami a Structural Insulated Panel rövidítése) egy modern, nagyteljesítményű építőanyag, amelyet leginkább egy óriási, rendkívül erős szendvicshez lehetne hasonlítani. A „szendvics” két külső rétege jellemzően valamilyen fa alapú lap (leggyakrabban OSB), a belseje pedig egy vastag, kemény szigetelőhab (általában expandált polisztirol, vagyis EPS), amelyet gyári körülmények között, nagy nyomáson ragasztanak össze.
Ez a szerkezet adja a technológia legnagyobb előnyeit. A panelek egyszerre látják el a teherhordó fal, a külső borítás és a hőszigetelés feladatát, egyetlen elemmé sűrítve a hagyományos építkezés több fázisát. Ennek köszönhetően a SIP-házak építése rendkívül gyors – a méretpontosra gyártott elemeket a helyszínen már csak össze kell szerelni, akár egy legót.
Az eredmény egy kivételesen stabil, légtömör és energiahatékony otthon. A megszakítás nélküli, vastag szigetelőmag miatt a SIP-házak fűtési és hűtési költségei rendkívül alacsonyak, az építési technológia pedig környezetbarát, mivel kevesebb hulladékkal jár. Egyszerűsége és hatékonysága miatt egyre népszerűbb választás világszerte.

A típusház kivitelezője:

Hasonló házak

Otthon Start Hitel
Akár 150 millió forintos családi házat is építhetsz, amire akár 50 milló forint hitelt is felvehetsz, 3%-is fix kamattal!