A közvetítői szolgáltatásunk teljes mértékben díjmentes az érdeklődők számára.
Nem kötődünk egyetlen gyártóhoz vagy kivitelezőhöz sem. Az ország számos szakértő kivitelezője közül segítünk kiválasztani az Ön igényeinek leginkább megfelelő partnert.
Csak olyan kivitelezőkkel működünk együtt, akik többéves szakmai tapasztalattal és hiteles referenciákkal rendelkeznek, ezzel garantálva a megbízhatóságot.
Szerkezetkész ár
Paraméterek
m²
Leírás
A Rock&Roll típusházunk egy modern otthon, ahol a stílus és a funkcionalitás tökéletes harmóniában találkozik. A letisztult, minimalista formavilág tágas és világos belső tereket rejt, amelyek ideálisak egy pörgős, mégis harmóniára vágyó család számára.
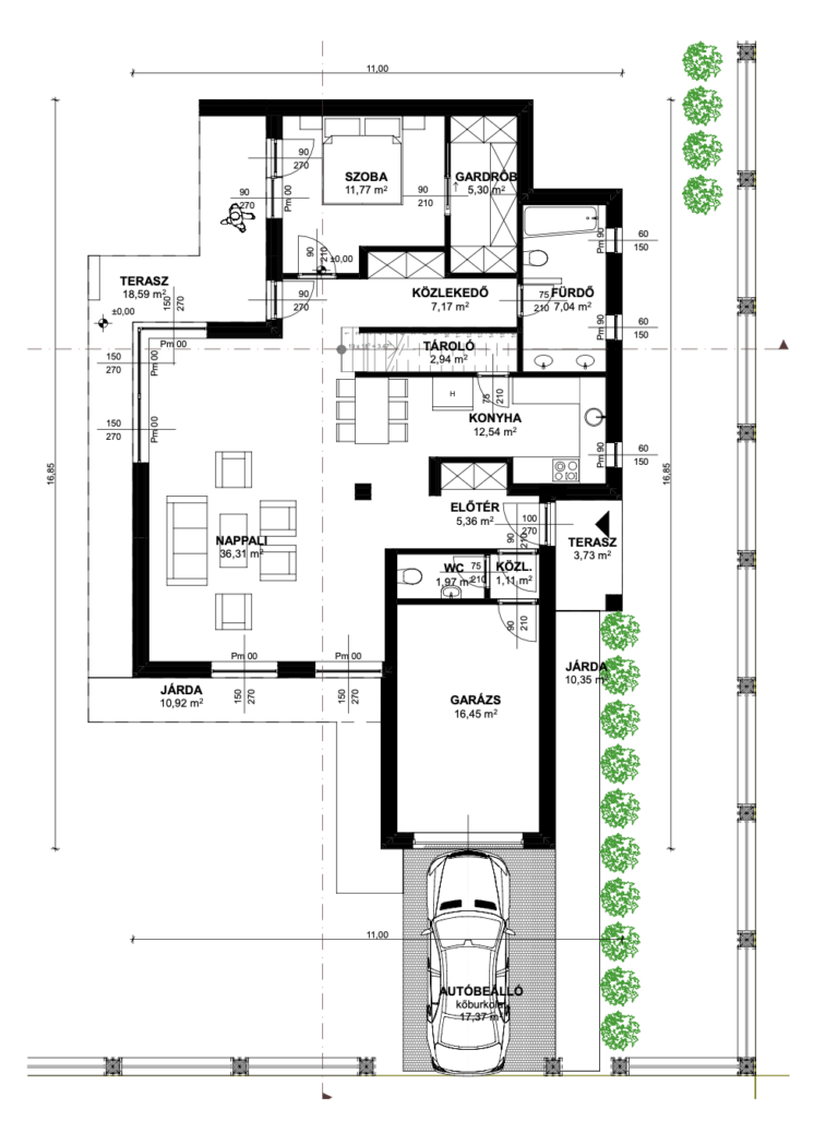
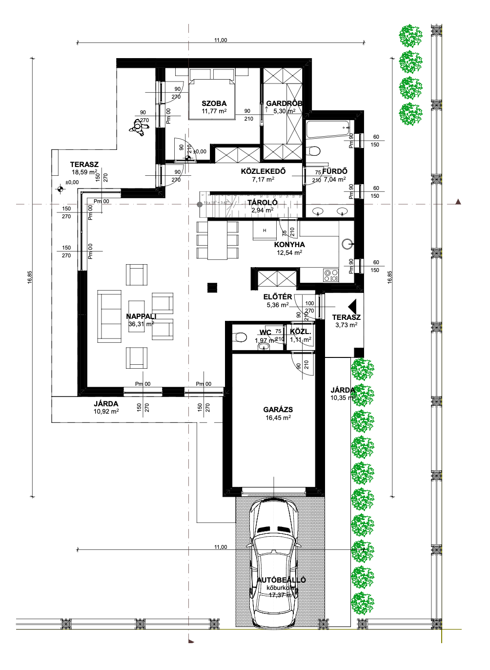
A házba lépve egyből az élettel teli, közel 37 négyzetméteres nappali fogad, amely egybenyílik a konyhával és az étkezővel. Ez a központi tér a családi élet színtere, ahonnan egy hatalmas, több mint 18 négyzetméteres teraszra léphetünk ki, összekötve a kintit a bentivel. A földszinten található egy tágas szoba saját gardróbbal és fürdőszobával, ami tökéletes szülői hálónak, vendégszobának vagy akár egy irodának is. A praktikusságot a garázs , a tároló és a különálló WC is növeli.
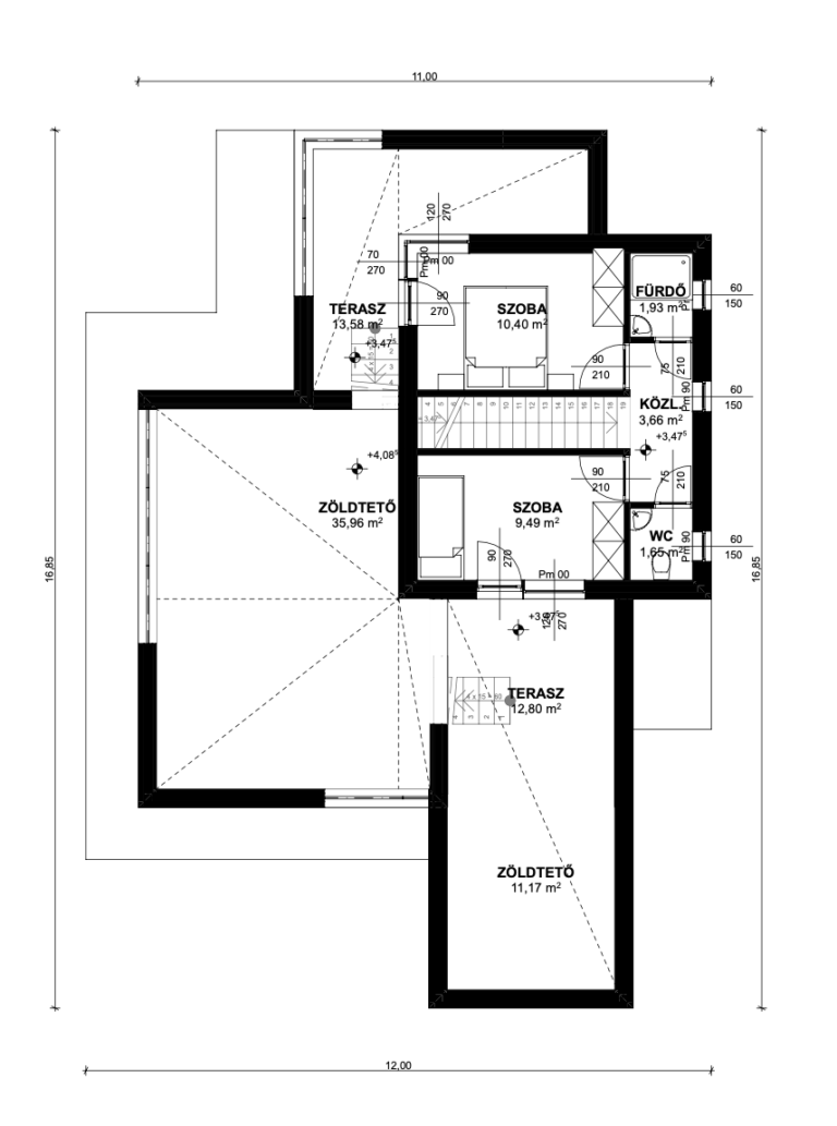
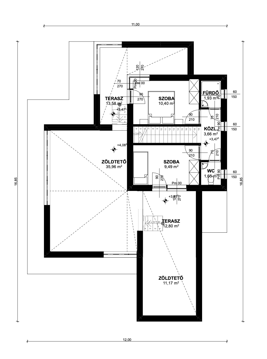
Az emelet a pihenésé és a privát szféráé. Itt két további szoba található , amelyekhez egy fürdőszoba és egy külön WC is tartozik. Az emelet igazi különlegessége a két, összesen több mint 26 négyzetméteres tetőterasz, ahonnan élvezhetjük a kilátást. A ház modern karakterét a zöldtetős részek is erősítik. Ezt a házat 4-5 fős családoknak ajánljuk, akik szeretik a modern építészetet, a tágas közösségi tereket, ugyanakkor fontos számukra a privát elvonulás lehetősége is.
Ez az otthon a világszerte ismert SIP (Strukturálisan Szigetelt Panel) technológiával épül, amelyet Magyarországon Hőszigetelt Építési Táblaként (HÉT) engedélyeztettek. A technológia lényege az előregyártott panelek használata, amelyek rendkívül erősek, mégis könnyűek. Ennek köszönhetően a ház szerkezete akár néhány nap alatt felállítható , az építkezés pedig tiszta és hulladékszegény. A panelek kiváló hőszigetelést biztosítanak , így a ház fenntartási költségei rendkívül alacsonyak lesznek, közel passzívház-szintű energiafelhasználást téve lehetővé. Mivel a falak vékonyabbak a hagyományos téglafalaknál, a hasznos alapterület is nagyobb.
Élvezze a modern építészet minden előnyét egy olyan otthonban, amely nemcsak gyorsan felépül, de fenntartása is rendkívül gazdaságos. Tegye meg az első lépést álmai otthona felé: kérjen ingyenes konzultációt kollégánktól!
Alaprajz
Kattintson az alaprajzra a nagyobb mérethez!
A Király Házak egyedi igényeket is figyelembe vesz, így a kivitelezés bizonyos részei változtathatók (pl.: szigetelés típus, hőszivattyú típus, falak színe…) Ezek a módosítások árváltozással járhatnak.
A teljes műszaki tartalom itt érhető el.
A Király Házak egyedi igényeket is figyelembe vesz, így a kivitelezés bizonyos részei változtathatók (pl.: szigetelés típus, hőszivattyú típus, falak színe…) Ezek a módosítások árváltozással járhatnak.
A teljes műszaki tartalom itt érhető el.
A Király Házak egyedi igényeket is figyelembe vesz, így a kivitelezés bizonyos részei változtathatók (pl.: szigetelés típus, hőszivattyú típus, falak színe…) Ezek a módosítások árváltozással járhatnak.
A teljes műszaki tartalom itt érhető el.
Építési technológia


A SIP-panel (ami a Structural Insulated Panel rövidítése) egy modern, nagyteljesítményű építőanyag, amelyet leginkább egy óriási, rendkívül erős szendvicshez lehetne hasonlítani. A „szendvics” két külső rétege jellemzően valamilyen fa alapú lap (leggyakrabban OSB), a belseje pedig egy vastag, kemény szigetelőhab (általában expandált polisztirol, vagyis EPS), amelyet gyári körülmények között, nagy nyomáson ragasztanak össze.
Ez a szerkezet adja a technológia legnagyobb előnyeit. A panelek egyszerre látják el a teherhordó fal, a külső borítás és a hőszigetelés feladatát, egyetlen elemmé sűrítve a hagyományos építkezés több fázisát. Ennek köszönhetően a SIP-házak építése rendkívül gyors – a méretpontosra gyártott elemeket a helyszínen már csak össze kell szerelni, akár egy legót.
Az eredmény egy kivételesen stabil, légtömör és energiahatékony otthon. A megszakítás nélküli, vastag szigetelőmag miatt a SIP-házak fűtési és hűtési költségei rendkívül alacsonyak, az építési technológia pedig környezetbarát, mivel kevesebb hulladékkal jár. Egyszerűsége és hatékonysága miatt egyre népszerűbb választás világszerte.

Miért rajtunk keresztül vegye fel a kapcsolatot a kivitelezővel?
A közvetítői szolgáltatásunk teljes mértékben díjmentes az érdeklődők számára.
Nem kötődünk egyetlen gyártóhoz vagy kivitelezőhöz sem. Az ország számos szakértő kivitelezője közül segítünk kiválasztani az Ön igényeinek leginkább megfelelő partnert.
Csak olyan kivitelezőkkel működünk együtt, akik többéves szakmai tapasztalattal és hiteles referenciákkal rendelkeznek, ezzel garantálva a megbízhatóságot.

Ha rajtunk keresztül rendeli meg, akkor 100.000 Ft-os IKEA vásárlási utalványt adunk ajándékba!
Azok számára, akik rajtunk keresztül veszik fel a kapcsolatot egy kivitelezővel, nemcsak az ingyenes tanácsadás előnyeit biztosítjuk, hanem egy 100 000 Ft értékű IKEA ajándékkártyával is megajándékozzuk, amennyiben szerződéskötésre kerül sor. Bővebben itt!

100 000Ft értékű IKEA kupont adunk ajándékba!
További részletek
Leírás
A Rock&Roll típusházunk egy modern otthon, ahol a stílus és a funkcionalitás tökéletes harmóniában találkozik. A letisztult, minimalista formavilág tágas és világos belső tereket rejt, amelyek ideálisak egy pörgős, mégis harmóniára vágyó család számára.
A házba lépve egyből az élettel teli, közel 37 négyzetméteres nappali fogad, amely egybenyílik a konyhával és az étkezővel. Ez a központi tér a családi élet színtere, ahonnan egy hatalmas, több mint 18 négyzetméteres teraszra léphetünk ki, összekötve a kintit a bentivel. A földszinten található egy tágas szoba saját gardróbbal és fürdőszobával, ami tökéletes szülői hálónak, vendégszobának vagy akár egy irodának is. A praktikusságot a garázs , a tároló és a különálló WC is növeli.
Az emelet a pihenésé és a privát szféráé. Itt két további szoba található , amelyekhez egy fürdőszoba és egy külön WC is tartozik. Az emelet igazi különlegessége a két, összesen több mint 26 négyzetméteres tetőterasz, ahonnan élvezhetjük a kilátást. A ház modern karakterét a zöldtetős részek is erősítik. Ezt a házat 4-5 fős családoknak ajánljuk, akik szeretik a modern építészetet, a tágas közösségi tereket, ugyanakkor fontos számukra a privát elvonulás lehetősége is.
Ez az otthon a világszerte ismert SIP (Strukturálisan Szigetelt Panel) technológiával épül, amelyet Magyarországon Hőszigetelt Építési Táblaként (HÉT) engedélyeztettek. A technológia lényege az előregyártott panelek használata, amelyek rendkívül erősek, mégis könnyűek. Ennek köszönhetően a ház szerkezete akár néhány nap alatt felállítható , az építkezés pedig tiszta és hulladékszegény. A panelek kiváló hőszigetelést biztosítanak , így a ház fenntartási költségei rendkívül alacsonyak lesznek, közel passzívház-szintű energiafelhasználást téve lehetővé. Mivel a falak vékonyabbak a hagyományos téglafalaknál, a hasznos alapterület is nagyobb.
Élvezze a modern építészet minden előnyét egy olyan otthonban, amely nemcsak gyorsan felépül, de fenntartása is rendkívül gazdaságos. Tegye meg az első lépést álmai otthona felé: kérjen ingyenes konzultációt kollégánktól!
Alaprajz
A Király Házak egyedi igényeket is figyelembe vesz, így a kivitelezés bizonyos részei változtathatók (pl.: szigetelés típus, hőszivattyú típus, falak színe…) Ezek a módosítások árváltozással járhatnak.
A teljes műszaki tartalom itt érhető el.
A Király Házak egyedi igényeket is figyelembe vesz, így a kivitelezés bizonyos részei változtathatók (pl.: szigetelés típus, hőszivattyú típus, falak színe…) Ezek a módosítások árváltozással járhatnak.
A teljes műszaki tartalom itt érhető el.
A Király Házak egyedi igényeket is figyelembe vesz, így a kivitelezés bizonyos részei változtathatók (pl.: szigetelés típus, hőszivattyú típus, falak színe…) Ezek a módosítások árváltozással járhatnak.
A teljes műszaki tartalom itt érhető el.
Technológia
A SIP-panel (ami a Structural Insulated Panel rövidítése) egy modern, nagyteljesítményű építőanyag, amelyet leginkább egy óriási, rendkívül erős szendvicshez lehetne hasonlítani. A „szendvics” két külső rétege jellemzően valamilyen fa alapú lap (leggyakrabban OSB), a belseje pedig egy vastag, kemény szigetelőhab (általában expandált polisztirol, vagyis EPS), amelyet gyári körülmények között, nagy nyomáson ragasztanak össze.
Ez a szerkezet adja a technológia legnagyobb előnyeit. A panelek egyszerre látják el a teherhordó fal, a külső borítás és a hőszigetelés feladatát, egyetlen elemmé sűrítve a hagyományos építkezés több fázisát. Ennek köszönhetően a SIP-házak építése rendkívül gyors – a méretpontosra gyártott elemeket a helyszínen már csak össze kell szerelni, akár egy legót.
Az eredmény egy kivételesen stabil, légtömör és energiahatékony otthon. A megszakítás nélküli, vastag szigetelőmag miatt a SIP-házak fűtési és hűtési költségei rendkívül alacsonyak, az építési technológia pedig környezetbarát, mivel kevesebb hulladékkal jár. Egyszerűsége és hatékonysága miatt egyre népszerűbb választás világszerte.

A típusház kivitelezője:

Hasonló házak

Otthon Start Hitel
Akár 150 millió forintos családi házat is építhetsz, amire akár 50 milló forint hitelt is felvehetsz, 3%-is fix kamattal!