A közvetítői szolgáltatásunk teljes mértékben díjmentes az érdeklődők számára.
Nem kötődünk egyetlen gyártóhoz vagy kivitelezőhöz sem. Az ország számos szakértő kivitelezője közül segítünk kiválasztani az Ön igényeinek leginkább megfelelő partnert.
Csak olyan kivitelezőkkel működünk együtt, akik többéves szakmai tapasztalattal és hiteles referenciákkal rendelkeznek, ezzel garantálva a megbízhatóságot.
Szerkezetkész ár
Paraméterek
m²
Leírás
A Mambo névre keresztelt háztípusunkban az egyensúly és a harmónia kézzelfoghatóvá válik. Intelligens tervezésének köszönhetően tökéletes választás családok számára, akik egyszerre vágynak a közös élményekre és a privát szféra nyugalmára.
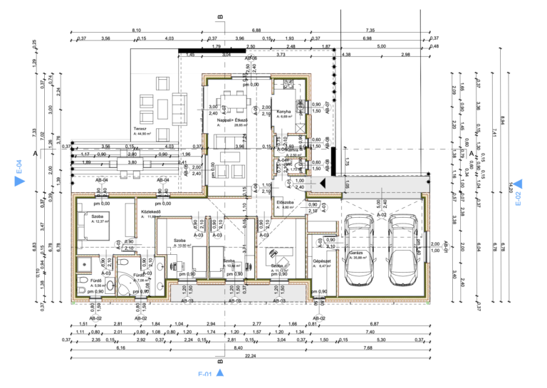
A ház alaprajzát két, jól elkülönülő élettér határozza meg, melyeket egy központi, nyitott közösségi zóna köt össze. Az egyik oldalon található a tágas szülői hálószoba, saját fürdőszobával és gardróbbal, ami egy valódi, privát menedéket kínál a nap végén. A ház másik szárnyában két további szoba és egy külön fürdőszoba kapott helyet, ideális teret biztosítva a gyerekeknek vagy a vendégeknek. A Mambo igazi szíve a világos, amerikai konyhás nappali-étkező , amely közvetlen kapcsolatban áll a hatalmas, több mint 50 négyzetméteres terasszal, így a családi és baráti összejövetelek könnyedén kiterjedhetnek a szabadba. Három hálószobájával és a tágas nappalival ez az otthon 3-5 fő számára nyújt kényelmes életteret.
Otthonaink a Magyarországon Hőszigetelt Építési Táblaként (HÉT) engedélyeztetett SIP panel technológiával készülnek. Ez a modern, előregyártott építési mód nemcsak rendkívül gyors kivitelezést tesz lehetővé – a szerkezet akár napok alatt felépülhet –, de kiemelkedő energiahatékonyságot is garantál. A panelek kiváló hőszigetelő képességének és a speciális légzárási technikáknak köszönhetően a fűtési és hűtési költségek akár 50%-kal is alacsonyabbak lehetnek egy hagyományos téglaházhoz képest. Mivel a falszerkezet vékonyabb az azonos hőszigetelést nyújtó téglafalaknál, értékes négyzetméterekkel növekszik a hasznos belső tér.
A Mambo ház műszaki tartalma gondosan összeválogatott, minőségi elemekből áll, hogy az Ön kényelme és a ház fenntarthatósága kompromisszumok nélküli legyen. Az otthon melegét modern, levegő-víz hőszivattyúval táplált vizes padlófűtés biztosítja, ami egyenletes és kellemes hőérzetet nyújt. A friss és tiszta levegőről alapáron beépített, hővisszanyerős szellőztető berendezések gondoskodnak , a háromrétegű üvegezéssel ellátott nyílászárók pedig nemcsak a csendet, de a meleget is bent tartják a házban.
A Mambo házban a mindennapok logikusan és kényelmesen telnek, hiszen a közös terek inspirálóak, a privát zugok pedig valódi feltöltődést nyújtanak.
Tegye meg az első lépést álmai otthona felé: kérjen ingyenes konzultációt kollégánktól!
Alaprajz
Kattintson az alaprajzra a nagyobb mérethez!
A Király Házak egyedi igényeket is figyelembe vesz, így a kivitelezés bizonyos részei változtathatók (pl.: szigetelés típus, hőszivattyú típus, falak színe…) Ezek a módosítások árváltozással járhatnak.
A teljes műszaki tartalom itt érhető el.
A Király Házak egyedi igényeket is figyelembe vesz, így a kivitelezés bizonyos részei változtathatók (pl.: szigetelés típus, hőszivattyú típus, falak színe…) Ezek a módosítások árváltozással járhatnak.
A teljes műszaki tartalom itt érhető el.
A Király Házak egyedi igényeket is figyelembe vesz, így a kivitelezés bizonyos részei változtathatók (pl.: szigetelés típus, hőszivattyú típus, falak színe…) Ezek a módosítások árváltozással járhatnak.
A teljes műszaki tartalom itt érhető el.
Építési technológia


A SIP-panel (ami a Structural Insulated Panel rövidítése) egy modern, nagyteljesítményű építőanyag, amelyet leginkább egy óriási, rendkívül erős szendvicshez lehetne hasonlítani. A „szendvics” két külső rétege jellemzően valamilyen fa alapú lap (leggyakrabban OSB), a belseje pedig egy vastag, kemény szigetelőhab (általában expandált polisztirol, vagyis EPS), amelyet gyári körülmények között, nagy nyomáson ragasztanak össze.
Ez a szerkezet adja a technológia legnagyobb előnyeit. A panelek egyszerre látják el a teherhordó fal, a külső borítás és a hőszigetelés feladatát, egyetlen elemmé sűrítve a hagyományos építkezés több fázisát. Ennek köszönhetően a SIP-házak építése rendkívül gyors – a méretpontosra gyártott elemeket a helyszínen már csak össze kell szerelni, akár egy legót.
Az eredmény egy kivételesen stabil, légtömör és energiahatékony otthon. A megszakítás nélküli, vastag szigetelőmag miatt a SIP-házak fűtési és hűtési költségei rendkívül alacsonyak, az építési technológia pedig környezetbarát, mivel kevesebb hulladékkal jár. Egyszerűsége és hatékonysága miatt egyre népszerűbb választás világszerte.

Miért rajtunk keresztül vegye fel a kapcsolatot a kivitelezővel?
A közvetítői szolgáltatásunk teljes mértékben díjmentes az érdeklődők számára.
Nem kötődünk egyetlen gyártóhoz vagy kivitelezőhöz sem. Az ország számos szakértő kivitelezője közül segítünk kiválasztani az Ön igényeinek leginkább megfelelő partnert.
Csak olyan kivitelezőkkel működünk együtt, akik többéves szakmai tapasztalattal és hiteles referenciákkal rendelkeznek, ezzel garantálva a megbízhatóságot.

Ha rajtunk keresztül rendeli meg, akkor 100.000 Ft-os IKEA vásárlási utalványt adunk ajándékba!
Azok számára, akik rajtunk keresztül veszik fel a kapcsolatot egy kivitelezővel, nemcsak az ingyenes tanácsadás előnyeit biztosítjuk, hanem egy 100 000 Ft értékű IKEA ajándékkártyával is megajándékozzuk, amennyiben szerződéskötésre kerül sor. Bővebben itt!

100 000Ft értékű IKEA kupont adunk ajándékba!
További részletek
Leírás
A Mambo névre keresztelt háztípusunkban az egyensúly és a harmónia kézzelfoghatóvá válik. Intelligens tervezésének köszönhetően tökéletes választás családok számára, akik egyszerre vágynak a közös élményekre és a privát szféra nyugalmára.
A ház alaprajzát két, jól elkülönülő élettér határozza meg, melyeket egy központi, nyitott közösségi zóna köt össze. Az egyik oldalon található a tágas szülői hálószoba, saját fürdőszobával és gardróbbal, ami egy valódi, privát menedéket kínál a nap végén. A ház másik szárnyában két további szoba és egy külön fürdőszoba kapott helyet, ideális teret biztosítva a gyerekeknek vagy a vendégeknek. A Mambo igazi szíve a világos, amerikai konyhás nappali-étkező , amely közvetlen kapcsolatban áll a hatalmas, több mint 50 négyzetméteres terasszal, így a családi és baráti összejövetelek könnyedén kiterjedhetnek a szabadba. Három hálószobájával és a tágas nappalival ez az otthon 3-5 fő számára nyújt kényelmes életteret.
Otthonaink a Magyarországon Hőszigetelt Építési Táblaként (HÉT) engedélyeztetett SIP panel technológiával készülnek. Ez a modern, előregyártott építési mód nemcsak rendkívül gyors kivitelezést tesz lehetővé – a szerkezet akár napok alatt felépülhet –, de kiemelkedő energiahatékonyságot is garantál. A panelek kiváló hőszigetelő képességének és a speciális légzárási technikáknak köszönhetően a fűtési és hűtési költségek akár 50%-kal is alacsonyabbak lehetnek egy hagyományos téglaházhoz képest. Mivel a falszerkezet vékonyabb az azonos hőszigetelést nyújtó téglafalaknál, értékes négyzetméterekkel növekszik a hasznos belső tér.
A Mambo ház műszaki tartalma gondosan összeválogatott, minőségi elemekből áll, hogy az Ön kényelme és a ház fenntarthatósága kompromisszumok nélküli legyen. Az otthon melegét modern, levegő-víz hőszivattyúval táplált vizes padlófűtés biztosítja, ami egyenletes és kellemes hőérzetet nyújt. A friss és tiszta levegőről alapáron beépített, hővisszanyerős szellőztető berendezések gondoskodnak , a háromrétegű üvegezéssel ellátott nyílászárók pedig nemcsak a csendet, de a meleget is bent tartják a házban.
A Mambo házban a mindennapok logikusan és kényelmesen telnek, hiszen a közös terek inspirálóak, a privát zugok pedig valódi feltöltődést nyújtanak.
Tegye meg az első lépést álmai otthona felé: kérjen ingyenes konzultációt kollégánktól!
Alaprajz
A Király Házak egyedi igényeket is figyelembe vesz, így a kivitelezés bizonyos részei változtathatók (pl.: szigetelés típus, hőszivattyú típus, falak színe…) Ezek a módosítások árváltozással járhatnak.
A teljes műszaki tartalom itt érhető el.
A Király Házak egyedi igényeket is figyelembe vesz, így a kivitelezés bizonyos részei változtathatók (pl.: szigetelés típus, hőszivattyú típus, falak színe…) Ezek a módosítások árváltozással járhatnak.
A teljes műszaki tartalom itt érhető el.
A Király Házak egyedi igényeket is figyelembe vesz, így a kivitelezés bizonyos részei változtathatók (pl.: szigetelés típus, hőszivattyú típus, falak színe…) Ezek a módosítások árváltozással járhatnak.
A teljes műszaki tartalom itt érhető el.
Technológia
A SIP-panel (ami a Structural Insulated Panel rövidítése) egy modern, nagyteljesítményű építőanyag, amelyet leginkább egy óriási, rendkívül erős szendvicshez lehetne hasonlítani. A „szendvics” két külső rétege jellemzően valamilyen fa alapú lap (leggyakrabban OSB), a belseje pedig egy vastag, kemény szigetelőhab (általában expandált polisztirol, vagyis EPS), amelyet gyári körülmények között, nagy nyomáson ragasztanak össze.
Ez a szerkezet adja a technológia legnagyobb előnyeit. A panelek egyszerre látják el a teherhordó fal, a külső borítás és a hőszigetelés feladatát, egyetlen elemmé sűrítve a hagyományos építkezés több fázisát. Ennek köszönhetően a SIP-házak építése rendkívül gyors – a méretpontosra gyártott elemeket a helyszínen már csak össze kell szerelni, akár egy legót.
Az eredmény egy kivételesen stabil, légtömör és energiahatékony otthon. A megszakítás nélküli, vastag szigetelőmag miatt a SIP-házak fűtési és hűtési költségei rendkívül alacsonyak, az építési technológia pedig környezetbarát, mivel kevesebb hulladékkal jár. Egyszerűsége és hatékonysága miatt egyre népszerűbb választás világszerte.

A típusház kivitelezője:

Hasonló házak

Otthon Start Hitel
Akár 150 millió forintos családi házat is építhetsz, amire akár 50 milló forint hitelt is felvehetsz, 3%-is fix kamattal!