A közvetítői szolgáltatásunk teljes mértékben díjmentes az érdeklődők számára.
Nem kötődünk egyetlen gyártóhoz vagy kivitelezőhöz sem. Az ország számos szakértő kivitelezője közül segítünk kiválasztani az Ön igényeinek leginkább megfelelő partnert.
Csak olyan kivitelezőkkel működünk együtt, akik többéves szakmai tapasztalattal és hiteles referenciákkal rendelkeznek, ezzel garantálva a megbízhatóságot.
Szerkezetkész ár
Paraméterek
m²
Leírás
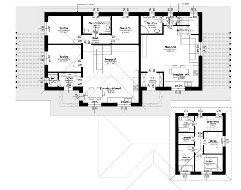
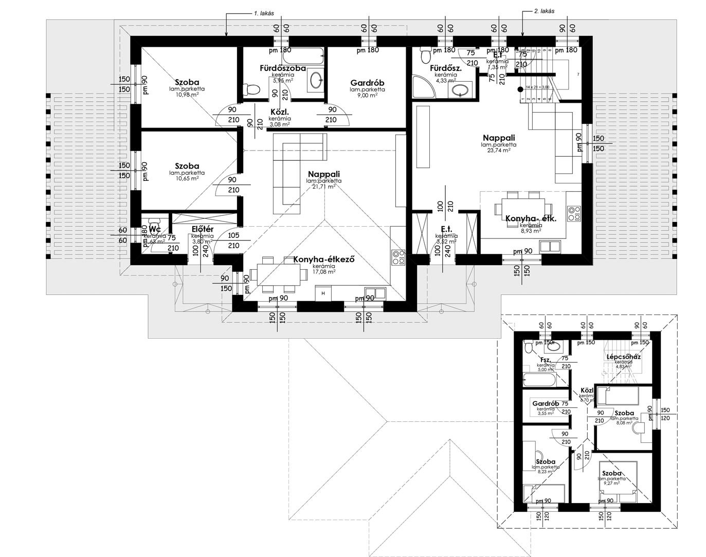
Képzelje el, hogy egy olyan otthonban él, ahol mindenkinek megvan a saját kényelmes élettere, mégis könnyedén együtt lehet a család. A Joseph háztípus pont ezt nyújtja. A kétszintes elrendezés tökéletesen elválasztja a közösségi és a privát zónákat. A földszinten egy hatalmas, napfényes nappali-konyha-étkező alkotja a ház szívét, ahol a közös családi ebédek és baráti összejövetelek zajlanak. Ezen a szinten található még két hálószoba és egy fürdőszoba is, ami rugalmas lehetőségeket kínál: ideális lehet vendégszobának, dolgozószobának, vagy akár egy idősebb, mozgásában korlátozott családtag számára is.
Az emeleten további három hálószoba és egy fürdőszoba kapott helyet, biztosítva a családtagok számára a nyugodt elvonulás lehetőségét. A tágas közlekedőből nyíló gardrób pedig praktikus tárolási megoldást kínál, segítve a rend fenntartását. Ez a ház öt hálószobájával kényelmes otthont biztosít akár egy 5-6 fős család számára is, ahol a generációk harmonikusan élhetnek együtt.
Ez a ház a modern SIP (Strukturált Szigetelt Panel), magyarul Hőszigetelt Építési Tábla (HÉT) technológiával épül, amely számos előnyt kínál a hagyományos építési módokkal szemben. Ennek a technológiának köszönhetően az építkezés rendkívül gyors, a ház szerkezete akár néhány nap alatt felállítható, így ön hamarabb költözhet be új otthonába. A panelek kiváló hőszigetelő képességgel rendelkeznek , ami drasztikusan csökkenti a fűtési és hűtési költségeket, így nemcsak a környezetet, de a pénztárcáját is kíméli.
A HÉT-technológia további előnye, hogy a falak vékonyabbak, mint a téglaszerkezeteknél, így azonos külső méretek mellett nagyobb hasznos belső teret kap. Az építési folyamat során minimális hulladék keletkezik , és mivel nincsenek nedves technológiai folyamatok, az építkezés akár télen is folytatódhat. Az eredmény egy rendkívül stabil , energiahatékony és komfortos otthon, amely hosszú távon is megőrzi értékét.
Élvezze a szabadságot egy olyan otthonban, ahol a rezsiköltségek többé nem jelentenek terhet. Kérjen ingyenes konzultációt kollégánktól!
Alaprajz
Kattintson az alaprajzra a nagyobb mérethez!
A Király Házak egyedi igényeket is figyelembe vesz, így a kivitelezés bizonyos részei változtathatók (pl.: szigetelés típus, hőszivattyú típus, falak színe…) Ezek a módosítások árváltozással járhatnak.
A teljes műszaki tartalom itt érhető el.
A Király Házak egyedi igényeket is figyelembe vesz, így a kivitelezés bizonyos részei változtathatók (pl.: szigetelés típus, hőszivattyú típus, falak színe…) Ezek a módosítások árváltozással járhatnak.
A teljes műszaki tartalom itt érhető el.
A Király Házak egyedi igényeket is figyelembe vesz, így a kivitelezés bizonyos részei változtathatók (pl.: szigetelés típus, hőszivattyú típus, falak színe…) Ezek a módosítások árváltozással járhatnak.
A teljes műszaki tartalom itt érhető el.
Építési technológia


A SIP-panel (ami a Structural Insulated Panel rövidítése) egy modern, nagyteljesítményű építőanyag, amelyet leginkább egy óriási, rendkívül erős szendvicshez lehetne hasonlítani. A „szendvics” két külső rétege jellemzően valamilyen fa alapú lap (leggyakrabban OSB), a belseje pedig egy vastag, kemény szigetelőhab (általában expandált polisztirol, vagyis EPS), amelyet gyári körülmények között, nagy nyomáson ragasztanak össze.
Ez a szerkezet adja a technológia legnagyobb előnyeit. A panelek egyszerre látják el a teherhordó fal, a külső borítás és a hőszigetelés feladatát, egyetlen elemmé sűrítve a hagyományos építkezés több fázisát. Ennek köszönhetően a SIP-házak építése rendkívül gyors – a méretpontosra gyártott elemeket a helyszínen már csak össze kell szerelni, akár egy legót.
Az eredmény egy kivételesen stabil, légtömör és energiahatékony otthon. A megszakítás nélküli, vastag szigetelőmag miatt a SIP-házak fűtési és hűtési költségei rendkívül alacsonyak, az építési technológia pedig környezetbarát, mivel kevesebb hulladékkal jár. Egyszerűsége és hatékonysága miatt egyre népszerűbb választás világszerte.

Miért rajtunk keresztül vegye fel a kapcsolatot a kivitelezővel?
A közvetítői szolgáltatásunk teljes mértékben díjmentes az érdeklődők számára.
Nem kötődünk egyetlen gyártóhoz vagy kivitelezőhöz sem. Az ország számos szakértő kivitelezője közül segítünk kiválasztani az Ön igényeinek leginkább megfelelő partnert.
Csak olyan kivitelezőkkel működünk együtt, akik többéves szakmai tapasztalattal és hiteles referenciákkal rendelkeznek, ezzel garantálva a megbízhatóságot.

Ha rajtunk keresztül rendeli meg, akkor 100.000 Ft-os IKEA vásárlási utalványt adunk ajándékba!
Azok számára, akik rajtunk keresztül veszik fel a kapcsolatot egy kivitelezővel, nemcsak az ingyenes tanácsadás előnyeit biztosítjuk, hanem egy 100 000 Ft értékű IKEA ajándékkártyával is megajándékozzuk, amennyiben szerződéskötésre kerül sor. Bővebben itt!

100 000Ft értékű IKEA kupont adunk ajándékba!
További részletek
Leírás
Képzelje el, hogy egy olyan otthonban él, ahol mindenkinek megvan a saját kényelmes élettere, mégis könnyedén együtt lehet a család. A Joseph háztípus pont ezt nyújtja. A kétszintes elrendezés tökéletesen elválasztja a közösségi és a privát zónákat. A földszinten egy hatalmas, napfényes nappali-konyha-étkező alkotja a ház szívét, ahol a közös családi ebédek és baráti összejövetelek zajlanak. Ezen a szinten található még két hálószoba és egy fürdőszoba is, ami rugalmas lehetőségeket kínál: ideális lehet vendégszobának, dolgozószobának, vagy akár egy idősebb, mozgásában korlátozott családtag számára is.
Az emeleten további három hálószoba és egy fürdőszoba kapott helyet, biztosítva a családtagok számára a nyugodt elvonulás lehetőségét. A tágas közlekedőből nyíló gardrób pedig praktikus tárolási megoldást kínál, segítve a rend fenntartását. Ez a ház öt hálószobájával kényelmes otthont biztosít akár egy 5-6 fős család számára is, ahol a generációk harmonikusan élhetnek együtt.
Ez a ház a modern SIP (Strukturált Szigetelt Panel), magyarul Hőszigetelt Építési Tábla (HÉT) technológiával épül, amely számos előnyt kínál a hagyományos építési módokkal szemben. Ennek a technológiának köszönhetően az építkezés rendkívül gyors, a ház szerkezete akár néhány nap alatt felállítható, így ön hamarabb költözhet be új otthonába. A panelek kiváló hőszigetelő képességgel rendelkeznek , ami drasztikusan csökkenti a fűtési és hűtési költségeket, így nemcsak a környezetet, de a pénztárcáját is kíméli.
A HÉT-technológia további előnye, hogy a falak vékonyabbak, mint a téglaszerkezeteknél, így azonos külső méretek mellett nagyobb hasznos belső teret kap. Az építési folyamat során minimális hulladék keletkezik , és mivel nincsenek nedves technológiai folyamatok, az építkezés akár télen is folytatódhat. Az eredmény egy rendkívül stabil , energiahatékony és komfortos otthon, amely hosszú távon is megőrzi értékét.
Élvezze a szabadságot egy olyan otthonban, ahol a rezsiköltségek többé nem jelentenek terhet. Kérjen ingyenes konzultációt kollégánktól!
Alaprajz
A Király Házak egyedi igényeket is figyelembe vesz, így a kivitelezés bizonyos részei változtathatók (pl.: szigetelés típus, hőszivattyú típus, falak színe…) Ezek a módosítások árváltozással járhatnak.
A teljes műszaki tartalom itt érhető el.
A Király Házak egyedi igényeket is figyelembe vesz, így a kivitelezés bizonyos részei változtathatók (pl.: szigetelés típus, hőszivattyú típus, falak színe…) Ezek a módosítások árváltozással járhatnak.
A teljes műszaki tartalom itt érhető el.
A Király Házak egyedi igényeket is figyelembe vesz, így a kivitelezés bizonyos részei változtathatók (pl.: szigetelés típus, hőszivattyú típus, falak színe…) Ezek a módosítások árváltozással járhatnak.
A teljes műszaki tartalom itt érhető el.
Technológia
A SIP-panel (ami a Structural Insulated Panel rövidítése) egy modern, nagyteljesítményű építőanyag, amelyet leginkább egy óriási, rendkívül erős szendvicshez lehetne hasonlítani. A „szendvics” két külső rétege jellemzően valamilyen fa alapú lap (leggyakrabban OSB), a belseje pedig egy vastag, kemény szigetelőhab (általában expandált polisztirol, vagyis EPS), amelyet gyári körülmények között, nagy nyomáson ragasztanak össze.
Ez a szerkezet adja a technológia legnagyobb előnyeit. A panelek egyszerre látják el a teherhordó fal, a külső borítás és a hőszigetelés feladatát, egyetlen elemmé sűrítve a hagyományos építkezés több fázisát. Ennek köszönhetően a SIP-házak építése rendkívül gyors – a méretpontosra gyártott elemeket a helyszínen már csak össze kell szerelni, akár egy legót.
Az eredmény egy kivételesen stabil, légtömör és energiahatékony otthon. A megszakítás nélküli, vastag szigetelőmag miatt a SIP-házak fűtési és hűtési költségei rendkívül alacsonyak, az építési technológia pedig környezetbarát, mivel kevesebb hulladékkal jár. Egyszerűsége és hatékonysága miatt egyre népszerűbb választás világszerte.

A típusház kivitelezője:

Hasonló házak

Otthon Start Hitel
Akár 150 millió forintos családi házat is építhetsz, amire akár 50 milló forint hitelt is felvehetsz, 3%-is fix kamattal!