A közvetítői szolgáltatásunk teljes mértékben díjmentes az érdeklődők számára.
Nem kötődünk egyetlen gyártóhoz vagy kivitelezőhöz sem. Az ország számos szakértő kivitelezője közül segítünk kiválasztani az Ön igényeinek leginkább megfelelő partnert.
Csak olyan kivitelezőkkel működünk együtt, akik többéves szakmai tapasztalattal és hiteles referenciákkal rendelkeznek, ezzel garantálva a megbízhatóságot.
Szerkezetkész ár
Paraméterek
m²
Leírás
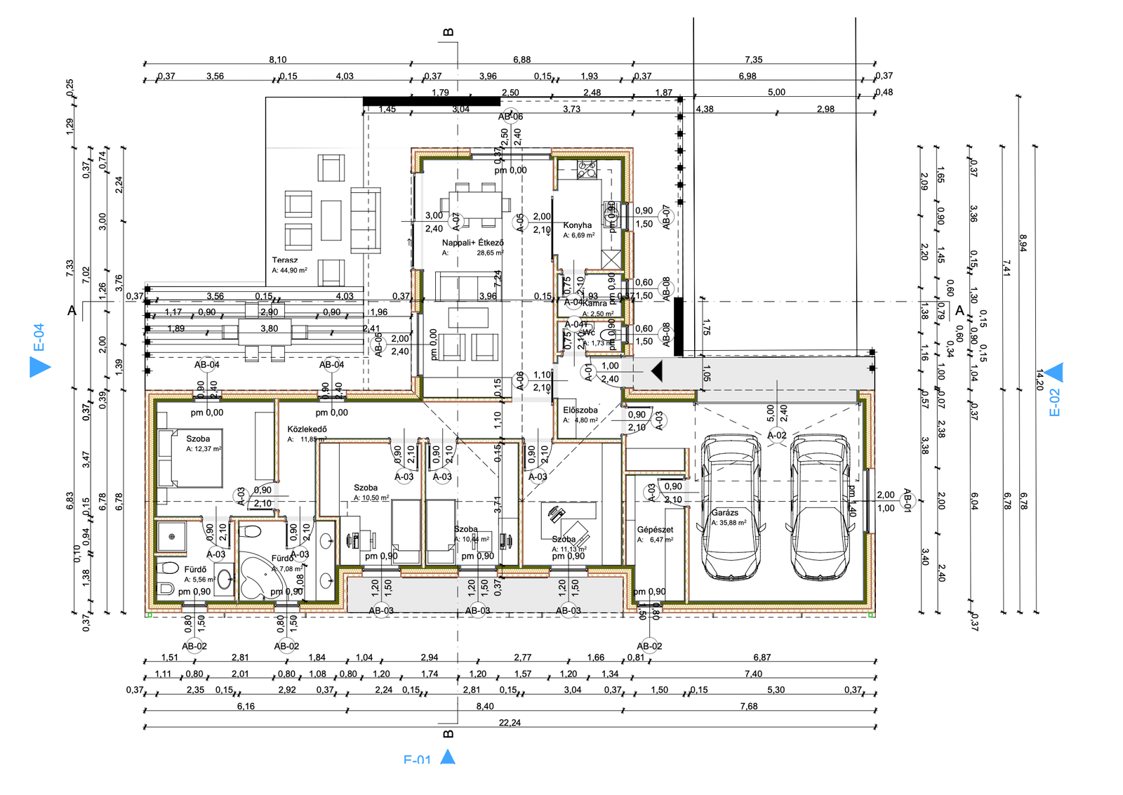
Képzelje el, ahogy hazaér egy olyan otthonba, ahol minden a család kényelmét és a közös élményeket szolgálja. A Jive háztípus pont ilyen: egy tágas, modern otthon, melynek szíve a hatalmas, közel 30 négyzetméteres amerikai konyhás nappali. Ez a tér szinte egybeolvad a lenyűgöző, 45 négyzetméteres terasszal, amely tökéletes helyszíne a baráti grillezéseknek, a vasárnapi családi ebédeknek vagy a gyerekek felszabadult játékának.
Ez a ház ideális választás 4-5 fős családok számára, hiszen a három külön bejáratú hálószoba mindenkinek biztosítja a privát szférát és a nyugodt pihenés lehetőségét. A reggeli készülődés sem okozhat többé fejtörést, köszönhetően a két külön fürdőszobának. A praktikus háztartási helyiség, a kamra és a gépészeti helyiség mellett egy tágas, kétállásos garázs is gondoskodik a kényelemről, ahonnan közvetlenül a lakásba léphet.
A Király Házak otthonai a világszerte SIP panelként ismert, Magyarországon Hőszigetelt Építési Tábla (HÉT) néven engedélyeztetett technológiával épülnek. Ez egy modern, előregyártott építési módszer, amely két OSB lap közé zárt, magas hatékonyságú hőszigetelő rétegből áll. Ennek köszönhetően a ház fenntartási költsége akár 50%-kal alacsonyabb lehet egy hagyományos téglaépülethez képest. Az építkezés rendkívül gyors és tiszta, hiszen a paneleket méretpontosan gyártják le, így a helyszínen már nincs szükség nehézgépekre, és a hulladék is minimális. Mivel nincs száradási idő, az építkezés az év bármely szakában lehetséges.
Bár a Jive egy típusház, ez nem jelenti azt, hogy ne alakíthatná saját igényeire. A belső válaszfalak elhelyezése felár nélkül módosítható, így a terek belső elrendezését szabadon variálhatja. Lehetősége van egyedi burkolatokat , szanitereket és beltéri ajtókat választani, sőt, a homlokzatot is egyedivé teheti különböző színátmenetekkel vagy kőburkolatokkal. A cél, hogy az otthona ne csak praktikus és energiatakarékos, hanem teljes mértékben az Ön stílusát is tükrözze.
Élvezze a gondtalan mindennapokat egy olyan otthonban, amely alacsony fenntartási költségei mellett kínál maximális kényelmet és tágas életteret. Tegye meg az első lépést, és kérjen ingyenes konzultációt kollégánktól!
Alaprajz
Kattintson az alaprajzra a nagyobb mérethez!
A Király Házak egyedi igényeket is figyelembe vesz, így a kivitelezés bizonyos részei változtathatók (pl.: szigetelés típus, hőszivattyú típus, falak színe…) Ezek a módosítások árváltozással járhatnak.
A teljes műszaki tartalom itt érhető el.
A Király Házak egyedi igényeket is figyelembe vesz, így a kivitelezés bizonyos részei változtathatók (pl.: szigetelés típus, hőszivattyú típus, falak színe…) Ezek a módosítások árváltozással járhatnak.
A teljes műszaki tartalom itt érhető el.
A Király Házak egyedi igényeket is figyelembe vesz, így a kivitelezés bizonyos részei változtathatók (pl.: szigetelés típus, hőszivattyú típus, falak színe…) Ezek a módosítások árváltozással járhatnak.
A teljes műszaki tartalom itt érhető el.
Építési technológia


A SIP-panel (ami a Structural Insulated Panel rövidítése) egy modern, nagyteljesítményű építőanyag, amelyet leginkább egy óriási, rendkívül erős szendvicshez lehetne hasonlítani. A „szendvics” két külső rétege jellemzően valamilyen fa alapú lap (leggyakrabban OSB), a belseje pedig egy vastag, kemény szigetelőhab (általában expandált polisztirol, vagyis EPS), amelyet gyári körülmények között, nagy nyomáson ragasztanak össze.
Ez a szerkezet adja a technológia legnagyobb előnyeit. A panelek egyszerre látják el a teherhordó fal, a külső borítás és a hőszigetelés feladatát, egyetlen elemmé sűrítve a hagyományos építkezés több fázisát. Ennek köszönhetően a SIP-házak építése rendkívül gyors – a méretpontosra gyártott elemeket a helyszínen már csak össze kell szerelni, akár egy legót.
Az eredmény egy kivételesen stabil, légtömör és energiahatékony otthon. A megszakítás nélküli, vastag szigetelőmag miatt a SIP-házak fűtési és hűtési költségei rendkívül alacsonyak, az építési technológia pedig környezetbarát, mivel kevesebb hulladékkal jár. Egyszerűsége és hatékonysága miatt egyre népszerűbb választás világszerte.

Miért rajtunk keresztül vegye fel a kapcsolatot a kivitelezővel?
A közvetítői szolgáltatásunk teljes mértékben díjmentes az érdeklődők számára.
Nem kötődünk egyetlen gyártóhoz vagy kivitelezőhöz sem. Az ország számos szakértő kivitelezője közül segítünk kiválasztani az Ön igényeinek leginkább megfelelő partnert.
Csak olyan kivitelezőkkel működünk együtt, akik többéves szakmai tapasztalattal és hiteles referenciákkal rendelkeznek, ezzel garantálva a megbízhatóságot.

Ha rajtunk keresztül rendeli meg, akkor 100.000 Ft-os IKEA vásárlási utalványt adunk ajándékba!
Azok számára, akik rajtunk keresztül veszik fel a kapcsolatot egy kivitelezővel, nemcsak az ingyenes tanácsadás előnyeit biztosítjuk, hanem egy 100 000 Ft értékű IKEA ajándékkártyával is megajándékozzuk, amennyiben szerződéskötésre kerül sor. Bővebben itt!

100 000Ft értékű IKEA kupont adunk ajándékba!
További részletek
Leírás
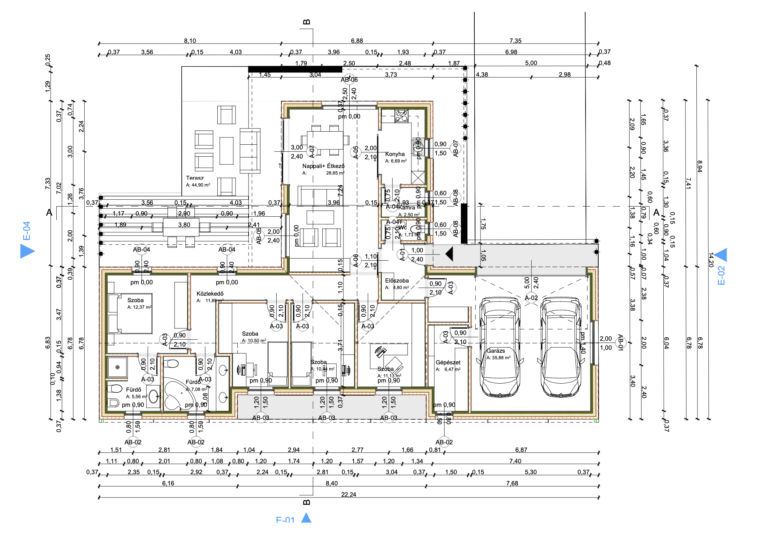
Képzelje el, ahogy hazaér egy olyan otthonba, ahol minden a család kényelmét és a közös élményeket szolgálja. A Jive háztípus pont ilyen: egy tágas, modern otthon, melynek szíve a hatalmas, közel 30 négyzetméteres amerikai konyhás nappali. Ez a tér szinte egybeolvad a lenyűgöző, 45 négyzetméteres terasszal, amely tökéletes helyszíne a baráti grillezéseknek, a vasárnapi családi ebédeknek vagy a gyerekek felszabadult játékának.
Ez a ház ideális választás 4-5 fős családok számára, hiszen a három külön bejáratú hálószoba mindenkinek biztosítja a privát szférát és a nyugodt pihenés lehetőségét. A reggeli készülődés sem okozhat többé fejtörést, köszönhetően a két külön fürdőszobának. A praktikus háztartási helyiség, a kamra és a gépészeti helyiség mellett egy tágas, kétállásos garázs is gondoskodik a kényelemről, ahonnan közvetlenül a lakásba léphet.
A Király Házak otthonai a világszerte SIP panelként ismert, Magyarországon Hőszigetelt Építési Tábla (HÉT) néven engedélyeztetett technológiával épülnek. Ez egy modern, előregyártott építési módszer, amely két OSB lap közé zárt, magas hatékonyságú hőszigetelő rétegből áll. Ennek köszönhetően a ház fenntartási költsége akár 50%-kal alacsonyabb lehet egy hagyományos téglaépülethez képest. Az építkezés rendkívül gyors és tiszta, hiszen a paneleket méretpontosan gyártják le, így a helyszínen már nincs szükség nehézgépekre, és a hulladék is minimális. Mivel nincs száradási idő, az építkezés az év bármely szakában lehetséges.
Bár a Jive egy típusház, ez nem jelenti azt, hogy ne alakíthatná saját igényeire. A belső válaszfalak elhelyezése felár nélkül módosítható, így a terek belső elrendezését szabadon variálhatja. Lehetősége van egyedi burkolatokat , szanitereket és beltéri ajtókat választani, sőt, a homlokzatot is egyedivé teheti különböző színátmenetekkel vagy kőburkolatokkal. A cél, hogy az otthona ne csak praktikus és energiatakarékos, hanem teljes mértékben az Ön stílusát is tükrözze.
Élvezze a gondtalan mindennapokat egy olyan otthonban, amely alacsony fenntartási költségei mellett kínál maximális kényelmet és tágas életteret. Tegye meg az első lépést, és kérjen ingyenes konzultációt kollégánktól!
Alaprajz
A Király Házak egyedi igényeket is figyelembe vesz, így a kivitelezés bizonyos részei változtathatók (pl.: szigetelés típus, hőszivattyú típus, falak színe…) Ezek a módosítások árváltozással járhatnak.
A teljes műszaki tartalom itt érhető el.
A Király Házak egyedi igényeket is figyelembe vesz, így a kivitelezés bizonyos részei változtathatók (pl.: szigetelés típus, hőszivattyú típus, falak színe…) Ezek a módosítások árváltozással járhatnak.
A teljes műszaki tartalom itt érhető el.
A Király Házak egyedi igényeket is figyelembe vesz, így a kivitelezés bizonyos részei változtathatók (pl.: szigetelés típus, hőszivattyú típus, falak színe…) Ezek a módosítások árváltozással járhatnak.
A teljes műszaki tartalom itt érhető el.
Technológia
A SIP-panel (ami a Structural Insulated Panel rövidítése) egy modern, nagyteljesítményű építőanyag, amelyet leginkább egy óriási, rendkívül erős szendvicshez lehetne hasonlítani. A „szendvics” két külső rétege jellemzően valamilyen fa alapú lap (leggyakrabban OSB), a belseje pedig egy vastag, kemény szigetelőhab (általában expandált polisztirol, vagyis EPS), amelyet gyári körülmények között, nagy nyomáson ragasztanak össze.
Ez a szerkezet adja a technológia legnagyobb előnyeit. A panelek egyszerre látják el a teherhordó fal, a külső borítás és a hőszigetelés feladatát, egyetlen elemmé sűrítve a hagyományos építkezés több fázisát. Ennek köszönhetően a SIP-házak építése rendkívül gyors – a méretpontosra gyártott elemeket a helyszínen már csak össze kell szerelni, akár egy legót.
Az eredmény egy kivételesen stabil, légtömör és energiahatékony otthon. A megszakítás nélküli, vastag szigetelőmag miatt a SIP-házak fűtési és hűtési költségei rendkívül alacsonyak, az építési technológia pedig környezetbarát, mivel kevesebb hulladékkal jár. Egyszerűsége és hatékonysága miatt egyre népszerűbb választás világszerte.

A típusház kivitelezője:

Hasonló házak

Otthon Start Hitel
Akár 150 millió forintos családi házat is építhetsz, amire akár 50 milló forint hitelt is felvehetsz, 3%-is fix kamattal!