A közvetítői szolgáltatásunk teljes mértékben díjmentes az érdeklődők számára.
Nem kötődünk egyetlen gyártóhoz vagy kivitelezőhöz sem. Az ország számos szakértő kivitelezője közül segítünk kiválasztani az Ön igényeinek leginkább megfelelő partnert.
Csak olyan kivitelezőkkel működünk együtt, akik többéves szakmai tapasztalattal és hiteles referenciákkal rendelkeznek, ezzel garantálva a megbízhatóságot.
Szerkezetkész ár
Paraméterek
m²
Leírás
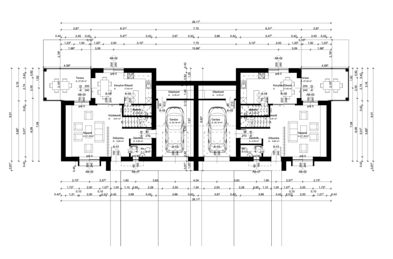
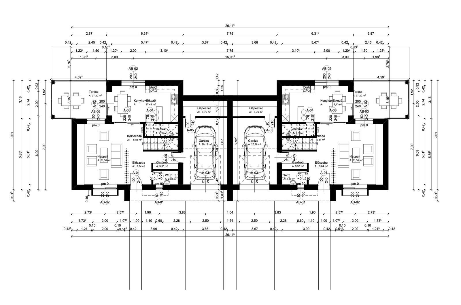
Bemutatjuk a Jazz modellt, egy olyan otthont, amely tökéletesen ötvözi a modern dizájnt a családi élet mindennapi igényeivel. Képzelje el a reggeleket, ahogy a tágas, amerikai konyhás nappaliból kilép a teraszra egy kávéval, miközben a család ébredezik. Ez a kétszintes ház ideális választás 4-5 fős családok számára, akik egy olyan életteret keresnek, ahol a közös programok és a privát elvonulás egyaránt helyet kapnak. A Jazz ház okos tervezésének köszönhetően a terek tágasak és funkcionálisak, miközben minden családtag megtalálja a saját, nyugodt szegletét.
A házba lépve egy praktikus előszoba fogad, amelyből a ház központi része, a több mint 38 m²-es, egyterű nappali-konyha-étkező nyílik. Ez a tér a családi élet valódi színtere: tökéletes helyszín a közös étkezésekhez, a baráti összejövetelekhez vagy a pihentető esti filmnézésekhez. A nagy üvegfelületeknek köszönhetően a nappali szinte egybeolvad a 27 m²-es terasszal, kiterjesztve az életteret a szabadba a melegebb hónapokban. A földszinten található még egy különálló WC és a közvetlen bejárattal rendelkező, 20 m²-es garázs is.
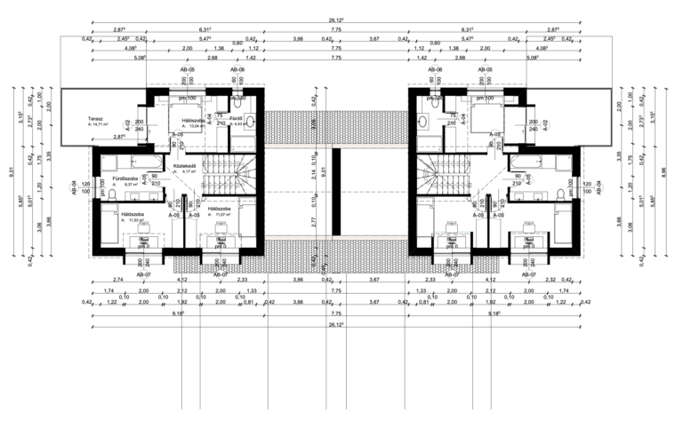
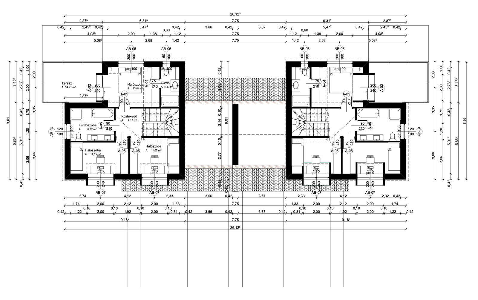
Az emelet a privát szféra birodalma, ahol három kényelmes hálószoba kapott helyet. A szülői hálószoba igazi menedék, hiszen saját fürdőszobával és egy 14 m²-es, intim tetőterasszal rendelkezik, ahová a nap végén elvonulhat feltöltődni. A másik két hálószobához egy további, tágas fürdőszoba tartozik, így a reggeli készülődés garantáltan zökkenőmentes lesz az egész család számára.
Ez az otthon a világszerte elismert SIP-technológiával épül, melyet Magyarországon Hőszigetelt Építési Táblaként (HÉT) engedélyeztettek. Ennek a modern, előregyártott építési módnak köszönhetően a ház szerkezete akár néhány nap alatt felállítható, jelentősen lerövidítve a teljes építkezési időt. A technológia legnagyobb előnye a kiemelkedő energiahatékonyság. A panelek kiváló hőszigetelő képessége miatt a ház fenntartási költsége akár 50%-kal is alacsonyabb lehet egy hagyományos téglaházhoz képest, ami a fűtési és hűtési számlákon is meglátszik majd. Az építkezés ráadásul tisztább és kevesebb hulladékkal jár , és mivel száraz technológiáról van szó, az év bármely szakában kivitelezhető.
Élvezze a modern dizájn és az alacsony fenntartási költségek tökéletes harmóniáját egy olyan otthonban, amely a család minden tagjának kényelmet és nyugalmat biztosít. Kérjen ingyenes konzultációt kollégánktól!
Alaprajz
Kattintson az alaprajzra a nagyobb mérethez!
A Király Házak egyedi igényeket is figyelembe vesz, így a kivitelezés bizonyos részei változtathatók (pl.: szigetelés típus, hőszivattyú típus, falak színe…) Ezek a módosítások árváltozással járhatnak.
A teljes műszaki tartalom itt érhető el.
A Király Házak egyedi igényeket is figyelembe vesz, így a kivitelezés bizonyos részei változtathatók (pl.: szigetelés típus, hőszivattyú típus, falak színe…) Ezek a módosítások árváltozással járhatnak.
A teljes műszaki tartalom itt érhető el.
A Király Házak egyedi igényeket is figyelembe vesz, így a kivitelezés bizonyos részei változtathatók (pl.: szigetelés típus, hőszivattyú típus, falak színe…) Ezek a módosítások árváltozással járhatnak.
A teljes műszaki tartalom itt érhető el.
Építési technológia


A SIP-panel (ami a Structural Insulated Panel rövidítése) egy modern, nagyteljesítményű építőanyag, amelyet leginkább egy óriási, rendkívül erős szendvicshez lehetne hasonlítani. A „szendvics” két külső rétege jellemzően valamilyen fa alapú lap (leggyakrabban OSB), a belseje pedig egy vastag, kemény szigetelőhab (általában expandált polisztirol, vagyis EPS), amelyet gyári körülmények között, nagy nyomáson ragasztanak össze.
Ez a szerkezet adja a technológia legnagyobb előnyeit. A panelek egyszerre látják el a teherhordó fal, a külső borítás és a hőszigetelés feladatát, egyetlen elemmé sűrítve a hagyományos építkezés több fázisát. Ennek köszönhetően a SIP-házak építése rendkívül gyors – a méretpontosra gyártott elemeket a helyszínen már csak össze kell szerelni, akár egy legót.
Az eredmény egy kivételesen stabil, légtömör és energiahatékony otthon. A megszakítás nélküli, vastag szigetelőmag miatt a SIP-házak fűtési és hűtési költségei rendkívül alacsonyak, az építési technológia pedig környezetbarát, mivel kevesebb hulladékkal jár. Egyszerűsége és hatékonysága miatt egyre népszerűbb választás világszerte.

Miért rajtunk keresztül vegye fel a kapcsolatot a kivitelezővel?
A közvetítői szolgáltatásunk teljes mértékben díjmentes az érdeklődők számára.
Nem kötődünk egyetlen gyártóhoz vagy kivitelezőhöz sem. Az ország számos szakértő kivitelezője közül segítünk kiválasztani az Ön igényeinek leginkább megfelelő partnert.
Csak olyan kivitelezőkkel működünk együtt, akik többéves szakmai tapasztalattal és hiteles referenciákkal rendelkeznek, ezzel garantálva a megbízhatóságot.

Ha rajtunk keresztül rendeli meg, akkor 100.000 Ft-os IKEA vásárlási utalványt adunk ajándékba!
Azok számára, akik rajtunk keresztül veszik fel a kapcsolatot egy kivitelezővel, nemcsak az ingyenes tanácsadás előnyeit biztosítjuk, hanem egy 100 000 Ft értékű IKEA ajándékkártyával is megajándékozzuk, amennyiben szerződéskötésre kerül sor. Bővebben itt!

100 000Ft értékű IKEA kupont adunk ajándékba!
További részletek
Leírás
Bemutatjuk a Jazz modellt, egy olyan otthont, amely tökéletesen ötvözi a modern dizájnt a családi élet mindennapi igényeivel. Képzelje el a reggeleket, ahogy a tágas, amerikai konyhás nappaliból kilép a teraszra egy kávéval, miközben a család ébredezik. Ez a kétszintes ház ideális választás 4-5 fős családok számára, akik egy olyan életteret keresnek, ahol a közös programok és a privát elvonulás egyaránt helyet kapnak. A Jazz ház okos tervezésének köszönhetően a terek tágasak és funkcionálisak, miközben minden családtag megtalálja a saját, nyugodt szegletét.
A házba lépve egy praktikus előszoba fogad, amelyből a ház központi része, a több mint 38 m²-es, egyterű nappali-konyha-étkező nyílik. Ez a tér a családi élet valódi színtere: tökéletes helyszín a közös étkezésekhez, a baráti összejövetelekhez vagy a pihentető esti filmnézésekhez. A nagy üvegfelületeknek köszönhetően a nappali szinte egybeolvad a 27 m²-es terasszal, kiterjesztve az életteret a szabadba a melegebb hónapokban. A földszinten található még egy különálló WC és a közvetlen bejárattal rendelkező, 20 m²-es garázs is.
Az emelet a privát szféra birodalma, ahol három kényelmes hálószoba kapott helyet. A szülői hálószoba igazi menedék, hiszen saját fürdőszobával és egy 14 m²-es, intim tetőterasszal rendelkezik, ahová a nap végén elvonulhat feltöltődni. A másik két hálószobához egy további, tágas fürdőszoba tartozik, így a reggeli készülődés garantáltan zökkenőmentes lesz az egész család számára.
Ez az otthon a világszerte elismert SIP-technológiával épül, melyet Magyarországon Hőszigetelt Építési Táblaként (HÉT) engedélyeztettek. Ennek a modern, előregyártott építési módnak köszönhetően a ház szerkezete akár néhány nap alatt felállítható, jelentősen lerövidítve a teljes építkezési időt. A technológia legnagyobb előnye a kiemelkedő energiahatékonyság. A panelek kiváló hőszigetelő képessége miatt a ház fenntartási költsége akár 50%-kal is alacsonyabb lehet egy hagyományos téglaházhoz képest, ami a fűtési és hűtési számlákon is meglátszik majd. Az építkezés ráadásul tisztább és kevesebb hulladékkal jár , és mivel száraz technológiáról van szó, az év bármely szakában kivitelezhető.
Élvezze a modern dizájn és az alacsony fenntartási költségek tökéletes harmóniáját egy olyan otthonban, amely a család minden tagjának kényelmet és nyugalmat biztosít. Kérjen ingyenes konzultációt kollégánktól!
Alaprajz
A Király Házak egyedi igényeket is figyelembe vesz, így a kivitelezés bizonyos részei változtathatók (pl.: szigetelés típus, hőszivattyú típus, falak színe…) Ezek a módosítások árváltozással járhatnak.
A teljes műszaki tartalom itt érhető el.
A Király Házak egyedi igényeket is figyelembe vesz, így a kivitelezés bizonyos részei változtathatók (pl.: szigetelés típus, hőszivattyú típus, falak színe…) Ezek a módosítások árváltozással járhatnak.
A teljes műszaki tartalom itt érhető el.
A Király Házak egyedi igényeket is figyelembe vesz, így a kivitelezés bizonyos részei változtathatók (pl.: szigetelés típus, hőszivattyú típus, falak színe…) Ezek a módosítások árváltozással járhatnak.
A teljes műszaki tartalom itt érhető el.
Technológia
A SIP-panel (ami a Structural Insulated Panel rövidítése) egy modern, nagyteljesítményű építőanyag, amelyet leginkább egy óriási, rendkívül erős szendvicshez lehetne hasonlítani. A „szendvics” két külső rétege jellemzően valamilyen fa alapú lap (leggyakrabban OSB), a belseje pedig egy vastag, kemény szigetelőhab (általában expandált polisztirol, vagyis EPS), amelyet gyári körülmények között, nagy nyomáson ragasztanak össze.
Ez a szerkezet adja a technológia legnagyobb előnyeit. A panelek egyszerre látják el a teherhordó fal, a külső borítás és a hőszigetelés feladatát, egyetlen elemmé sűrítve a hagyományos építkezés több fázisát. Ennek köszönhetően a SIP-házak építése rendkívül gyors – a méretpontosra gyártott elemeket a helyszínen már csak össze kell szerelni, akár egy legót.
Az eredmény egy kivételesen stabil, légtömör és energiahatékony otthon. A megszakítás nélküli, vastag szigetelőmag miatt a SIP-házak fűtési és hűtési költségei rendkívül alacsonyak, az építési technológia pedig környezetbarát, mivel kevesebb hulladékkal jár. Egyszerűsége és hatékonysága miatt egyre népszerűbb választás világszerte.

A típusház kivitelezője:

Hasonló házak

Otthon Start Hitel
Akár 150 millió forintos családi házat is építhetsz, amire akár 50 milló forint hitelt is felvehetsz, 3%-is fix kamattal!