A közvetítői szolgáltatásunk teljes mértékben díjmentes az érdeklődők számára.
Nem kötődünk egyetlen gyártóhoz vagy kivitelezőhöz sem. Az ország számos szakértő kivitelezője közül segítünk kiválasztani az Ön igényeinek leginkább megfelelő partnert.
Csak olyan kivitelezőkkel működünk együtt, akik többéves szakmai tapasztalattal és hiteles referenciákkal rendelkeznek, ezzel garantálva a megbízhatóságot.
Szerkezetkész ár
Paraméterek
m²
Leírás
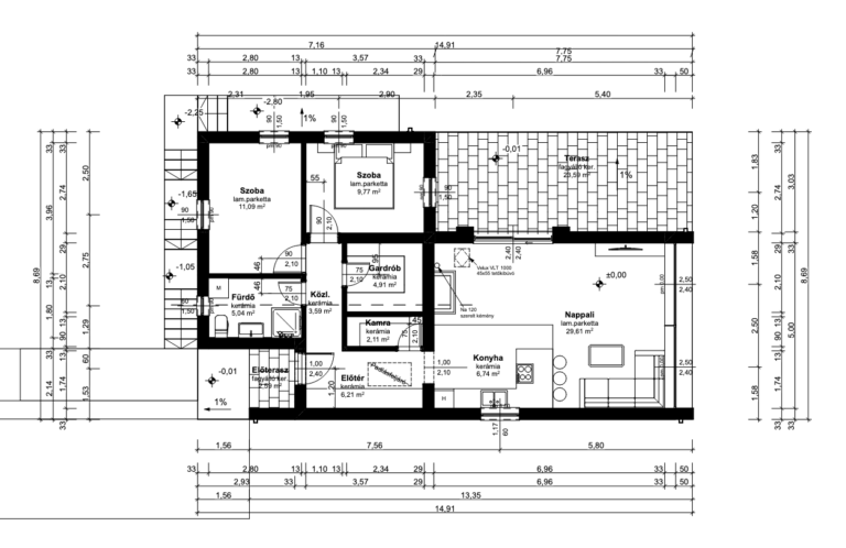
A Bánk egy kompakt méretű, modern otthon, amelyet egyértelműen a tágas közösségi terek köré terveztek. A ház szíve a lenyűgöző, közel 30 m²-es nappali, amely szinte egybeolvad a hozzá kapcsolódó, szintén hatalmas, 29,59 m²-es terasszal. Ez a kialakítás tavasztól őszig gyakorlatilag megduplázza a rendelkezésre álló életteret. Bánk szereti a hazáját, és meg is mutatja minden szépségét a benne élőknek. Olyan helyre ajánljuk, ahol van miben gyönyörködni, legyen az egy örökpanoráma vagy egy csendes tisztás az erdőben. A nyitott, 6,74 m²-es konyhával kiegészülve ez a világos, levegős zóna tökéletes helyszínt biztosít családi ebédekhez, baráti összejövetelekhez vagy egyszerűen csak a mindennapi feltöltődéshez.
A Bánk okos elrendezése a közösségi tereken túl is folytatódik. Két hálószobával (11,09 m² és 9,77 m²) rendelkezik, így ideális választás lehet pároknak, egygyermekes családoknak, vagy azoknak, akik egy kényelmes vendégszoba vagy egy zavartalan otthoni iroda kialakítására vágynak. A tervezők a tárolásra is gondoltak: a konyhából nyíló 2,11 m²-es kamra (Kamra) és a közlekedőből elérhető, 4,91 m²-es gardrób (Gardrób) gondoskodik róla, hogy a ház mindig rendezett és átlátható maradjon, felesleges szekrények nélkül.
Az otthon alapját a korszerű SIP (Structural Insulated Panel) technológia adja. Ez egy háromrétegű építőpanelt jelent, ahol két nagy teherbírású OSB-lap egy magas hatásfokú hőszigetelő magot zár közre. A lakók számára ez két azonnali előnnyel jár: egyrészt a szerkezet kiemelkedő hőszigetelést biztosít (akár a passzívház-szintet is elérheti), ami rendkívül alacsony rezsiköltségeket eredményez. Másrészt, mivel a panelek milliméter pontosan, üzemi körülmények között készülnek , a helyszíni építkezés hihetetlenül gyors – egy kulcsrakész ház akár 120–160 nap alatt elkészülhet , időjárástól függetlenül és minimális hulladéktermeléssel.
A kivitelezést a Generálkommandó 2013 óta működő csapata végzi. Stabilitásukat jelzi, hogy minden szükséges szakembert maguk foglalkoztatnak , a gépészektől a burkolókon át az ácsokig . Ez garantálja a zökkenőmentes és precíz munkavégzést. Az ügyfelek számára a legnagyobb kényelmet az jelenti, hogy a teljes folyamat során egyetlen projektvezetővel tartják a kapcsolatot, így nem kell tucatnyi szakemberrel külön egyegetniük. A cég mindezt komoly garanciákkal támasztja alá: inflációtól független árgaranciát , valamint (kötbérrel erősített) határidő-garanciát is vállalnak.
Képzelje el, ahogy a tágas teraszon ülve élvezi a nyugalmat egy olyan otthonban, amely a legmodernebb technológiával vigyáz az Ön kényelmére és pénztárcájára.
Kérjen ingyenes konzultációt kollégánktól!
Alaprajz
Kattintson az alaprajzra a nagyobb mérethez!
Az árajánlat a készház teljes kivitelezésének főbb műszaki elemeit tartalmazza, az alábbi műszaki paraméterekkel:
🧱 Hő- és vízszigetelés
Födém- és tetőszigetelés:
Vízszigetelés:
🧱 Szárazépítés – gipszkarton szerkezetek
🏗️ Aljzatképzés – estrich beton
🪟 Nyílászárók kapcsolódó szerkezetei
Villanyszerelés
Földelési rendszer és érintésvédelem
Megjegyzés:
A lámpatestek és szerelvények típusa, dizájnja megrendelői választás szerint kerül meghatározásra.
🔥 Fűtési rendszer
🚿 Víz- és csatornahálózat
🌬️ Kiegészítő gépészet
A gépészeti és villamos szerelvények típusa, márkája és értékkategóriája a kiválasztott csomag és egyedi egyeztetés alapján kerül meghatározásra.
🧱 Hidegburkolatok
🌳 Melegburkolatok
🎨 Festés, felületképzés
Építési technológia


A SIP-panel (ami a Structural Insulated Panel rövidítése) egy modern, nagyteljesítményű építőanyag, amelyet leginkább egy óriási, rendkívül erős szendvicshez lehetne hasonlítani. A „szendvics” két külső rétege jellemzően valamilyen fa alapú lap (leggyakrabban OSB), a belseje pedig egy vastag, kemény szigetelőhab (általában expandált polisztirol, vagyis EPS), amelyet gyári körülmények között, nagy nyomáson ragasztanak össze.
Ez a szerkezet adja a technológia legnagyobb előnyeit. A panelek egyszerre látják el a teherhordó fal, a külső borítás és a hőszigetelés feladatát, egyetlen elemmé sűrítve a hagyományos építkezés több fázisát. Ennek köszönhetően a SIP-házak építése rendkívül gyors – a méretpontosra gyártott elemeket a helyszínen már csak össze kell szerelni, akár egy legót.
Az eredmény egy kivételesen stabil, légtömör és energiahatékony otthon. A megszakítás nélküli, vastag szigetelőmag miatt a SIP-házak fűtési és hűtési költségei rendkívül alacsonyak, az építési technológia pedig környezetbarát, mivel kevesebb hulladékkal jár. Egyszerűsége és hatékonysága miatt egyre népszerűbb választás világszerte.

Miért rajtunk keresztül vegye fel a kapcsolatot a kivitelezővel?
A közvetítői szolgáltatásunk teljes mértékben díjmentes az érdeklődők számára.
Nem kötődünk egyetlen gyártóhoz vagy kivitelezőhöz sem. Az ország számos szakértő kivitelezője közül segítünk kiválasztani az Ön igényeinek leginkább megfelelő partnert.
Csak olyan kivitelezőkkel működünk együtt, akik többéves szakmai tapasztalattal és hiteles referenciákkal rendelkeznek, ezzel garantálva a megbízhatóságot.

Ha rajtunk keresztül rendeli meg, akkor 100.000 Ft-os IKEA vásárlási utalványt adunk ajándékba!
Azok számára, akik rajtunk keresztül veszik fel a kapcsolatot egy kivitelezővel, nemcsak az ingyenes tanácsadás előnyeit biztosítjuk, hanem egy 100 000 Ft értékű IKEA ajándékkártyával is megajándékozzuk, amennyiben szerződéskötésre kerül sor. Bővebben itt!

100 000Ft értékű IKEA kupont adunk ajándékba!
További részletek
Leírás
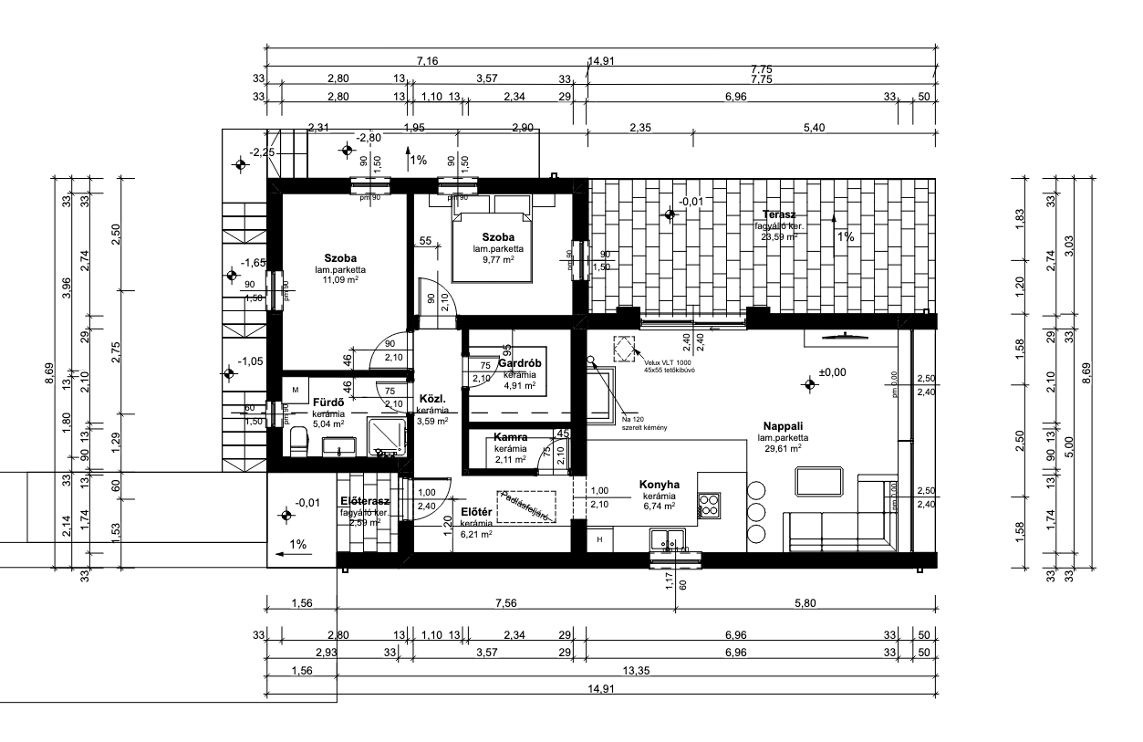
A Bánk egy kompakt méretű, modern otthon, amelyet egyértelműen a tágas közösségi terek köré terveztek. A ház szíve a lenyűgöző, közel 30 m²-es nappali, amely szinte egybeolvad a hozzá kapcsolódó, szintén hatalmas, 29,59 m²-es terasszal. Ez a kialakítás tavasztól őszig gyakorlatilag megduplázza a rendelkezésre álló életteret. Bánk szereti a hazáját, és meg is mutatja minden szépségét a benne élőknek. Olyan helyre ajánljuk, ahol van miben gyönyörködni, legyen az egy örökpanoráma vagy egy csendes tisztás az erdőben. A nyitott, 6,74 m²-es konyhával kiegészülve ez a világos, levegős zóna tökéletes helyszínt biztosít családi ebédekhez, baráti összejövetelekhez vagy egyszerűen csak a mindennapi feltöltődéshez.
A Bánk okos elrendezése a közösségi tereken túl is folytatódik. Két hálószobával (11,09 m² és 9,77 m²) rendelkezik, így ideális választás lehet pároknak, egygyermekes családoknak, vagy azoknak, akik egy kényelmes vendégszoba vagy egy zavartalan otthoni iroda kialakítására vágynak. A tervezők a tárolásra is gondoltak: a konyhából nyíló 2,11 m²-es kamra (Kamra) és a közlekedőből elérhető, 4,91 m²-es gardrób (Gardrób) gondoskodik róla, hogy a ház mindig rendezett és átlátható maradjon, felesleges szekrények nélkül.
Az otthon alapját a korszerű SIP (Structural Insulated Panel) technológia adja. Ez egy háromrétegű építőpanelt jelent, ahol két nagy teherbírású OSB-lap egy magas hatásfokú hőszigetelő magot zár közre. A lakók számára ez két azonnali előnnyel jár: egyrészt a szerkezet kiemelkedő hőszigetelést biztosít (akár a passzívház-szintet is elérheti), ami rendkívül alacsony rezsiköltségeket eredményez. Másrészt, mivel a panelek milliméter pontosan, üzemi körülmények között készülnek , a helyszíni építkezés hihetetlenül gyors – egy kulcsrakész ház akár 120–160 nap alatt elkészülhet , időjárástól függetlenül és minimális hulladéktermeléssel.
A kivitelezést a Generálkommandó 2013 óta működő csapata végzi. Stabilitásukat jelzi, hogy minden szükséges szakembert maguk foglalkoztatnak , a gépészektől a burkolókon át az ácsokig . Ez garantálja a zökkenőmentes és precíz munkavégzést. Az ügyfelek számára a legnagyobb kényelmet az jelenti, hogy a teljes folyamat során egyetlen projektvezetővel tartják a kapcsolatot, így nem kell tucatnyi szakemberrel külön egyegetniük. A cég mindezt komoly garanciákkal támasztja alá: inflációtól független árgaranciát , valamint (kötbérrel erősített) határidő-garanciát is vállalnak.
Képzelje el, ahogy a tágas teraszon ülve élvezi a nyugalmat egy olyan otthonban, amely a legmodernebb technológiával vigyáz az Ön kényelmére és pénztárcájára.
Kérjen ingyenes konzultációt kollégánktól!
Alaprajz
Az árajánlat a készház teljes kivitelezésének főbb műszaki elemeit tartalmazza, az alábbi műszaki paraméterekkel:
🧱 Hő- és vízszigetelés
Födém- és tetőszigetelés:
Vízszigetelés:
🧱 Szárazépítés – gipszkarton szerkezetek
🏗️ Aljzatképzés – estrich beton
🪟 Nyílászárók kapcsolódó szerkezetei
Villanyszerelés
Földelési rendszer és érintésvédelem
Megjegyzés:
A lámpatestek és szerelvények típusa, dizájnja megrendelői választás szerint kerül meghatározásra.
🔥 Fűtési rendszer
🚿 Víz- és csatornahálózat
🌬️ Kiegészítő gépészet
A gépészeti és villamos szerelvények típusa, márkája és értékkategóriája a kiválasztott csomag és egyedi egyeztetés alapján kerül meghatározásra.
🧱 Hidegburkolatok
🌳 Melegburkolatok
🎨 Festés, felületképzés
Technológia
A SIP-panel (ami a Structural Insulated Panel rövidítése) egy modern, nagyteljesítményű építőanyag, amelyet leginkább egy óriási, rendkívül erős szendvicshez lehetne hasonlítani. A „szendvics” két külső rétege jellemzően valamilyen fa alapú lap (leggyakrabban OSB), a belseje pedig egy vastag, kemény szigetelőhab (általában expandált polisztirol, vagyis EPS), amelyet gyári körülmények között, nagy nyomáson ragasztanak össze.
Ez a szerkezet adja a technológia legnagyobb előnyeit. A panelek egyszerre látják el a teherhordó fal, a külső borítás és a hőszigetelés feladatát, egyetlen elemmé sűrítve a hagyományos építkezés több fázisát. Ennek köszönhetően a SIP-házak építése rendkívül gyors – a méretpontosra gyártott elemeket a helyszínen már csak össze kell szerelni, akár egy legót.
Az eredmény egy kivételesen stabil, légtömör és energiahatékony otthon. A megszakítás nélküli, vastag szigetelőmag miatt a SIP-házak fűtési és hűtési költségei rendkívül alacsonyak, az építési technológia pedig környezetbarát, mivel kevesebb hulladékkal jár. Egyszerűsége és hatékonysága miatt egyre népszerűbb választás világszerte.

A típusház kivitelezője:

Hasonló házak

Otthon Start Hitel
Akár 150 millió forintos családi házat is építhetsz, amire akár 50 milló forint hitelt is felvehetsz, 3%-is fix kamattal!