Csaba SIP Készház

Választható kivitelezési szintek

A kivitelezőnél az alábbi készültségi szintek választhatóak. Nettó árak, az ÁFA 5%. Csomagok részletes tartalma itt érthető el!
Kulcsrakész ár
122 923 000 Ft

Ingyenes

A közvetítői szolgáltatásunk teljes mértékben díjmentes az érdeklődők számára.

Független

Nem kötődünk egyetlen gyártóhoz vagy kivitelezőhöz sem. Az ország számos szakértő kivitelezője közül segítünk kiválasztani az Ön igényeinek leginkább megfelelő partnert.

Biztonságos

Csak olyan kivitelezőkkel működünk együtt, akik többéves szakmai tapasztalattal és hiteles referenciákkal rendelkeznek, ezzel garantálva a megbízhatóságot.

Szerkezetkész ár

Paraméterek

Bruttó alapterület

159.64 m²

Nettó alapterület

135.56 m²

Szobák száma

5

Fürdőszobák száma

2

Csaba SIP Készház

Szobák száma

5

Fürdőszobák száma

2

Bruttó alapterület

159.64

Nettó alapterület

135.56

Leírás

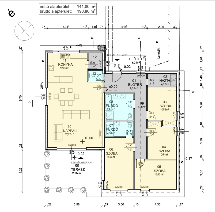
A Csaba típusház egy igazi családi fészek, amely tökéletes egyensúlyt teremt a tágas közösségi életterek és a privát szférák között. A tervezés középpontjában a közel 50 m²-es, egybenyitott konyha-étkező-nappali áll, amely a ház vitathatatlanul legvilágosabb pontja. Ez a hatalmas, napfényes tér arra született, hogy otthont adjon a közös vacsoráknak, a hétvégi baráti összejöveteleknek vagy egy csendes délutáni pihenésnek.

Ahol a kényelem és a praktikum találkozik

A ház alaprajza intelligensen különíti el a nappali, nyüzsgő „nappali zónát” az éjszakai pihenő részlegtől. A 141,80 m²-es nettó alapterületen négy, kényelmes méretű hálószoba kapott helyet, melyek egy külön folyosóról nyílnak, biztosítva a családtagok nyugalmát. A reggeli csúcsidő többé nem jelent problémát, köszönhetően a két különálló, tágas fürdőszobának (egy 7,91 m²-es és egy 4,68 m²-es), valamint a bejárat mellett található praktikus háztartási helyiségnek.

Amikor a nappali a teraszon folytatódik

A Csaba ház egyik legvonzóbb tulajdonsága a terek áramlása. A nappaliból egy hatalmas üvegfelületen keresztül léphetünk ki a 25 m²-es teraszra, amely nyáron szinte megduplázza a közösségi teret. Ez a ház ideális választás 4-5 fős családok számára, akik tágas, világos otthont keresnek, ahol a gyerekeknek és a szülőknek is megvan a saját birodalma, de a közös programok is kényelmesen elférnek.

A jövő technológiájával építve

Ez az otthon modern SIP (Structural Insulated Panel) technológiával épül. Ez egy háromrétegű építőpanel, amely két OSB-lap között zárt, nagy hatékonyságú hőszigetelő magot tartalmaz. A gyárban, milliméter pontosan készülő elemek nemcsak kiemelkedő statikai stabilitást , hanem passzívház-szintű hőszigetelést is biztosítanak. Ez a gyakorlatban alacsony rezsiköltséget és jelentős energiamegtakarítást jelent. Az építkezés rendkívül gyors: egy kulcsrakész ház akár 120-160 nap alatt elkészülhet , időjárástól függetlenül és szinte hulladékmentesen.

Megbízható kivitelezés egyedi garanciákkal

A kivitelezést a 2013 óta működő Generálkommandó csapata végzi , akik megbízhatóságukról és precizitásukról ismertek. Egyedülálló előny, hogy minden szakembert maguk foglalkoztatnak , így az ügyfélnek csak egyetlen projektvezetővel kell tartania a kapcsolatot, időt és energiát spórolva. A cég inflációtól független árgaranciát , valamint kötbérrel megerősített kezdési és befejezési határidőt is vállal.

Élvezze a nyugalmat egy olyan otthonban, amely tökéletesen igazodik a családja igényeihez. Kérjen ingyenes konzultációt kollégánktól!

Alaprajz

Kattintson az alaprajzra a nagyobb mérethez!

Részletes műszaki tartalom SIP házak esetén

Az árajánlat a készház teljes kivitelezésének főbb műszaki elemeit tartalmazza, az alábbi műszaki paraméterekkel:

Kulcsrakész állapot

Az alapár tartalmazza:

🧱 Hő- és vízszigetelés

  • Homlokzati hőszigetelés:
    • 15–20 cm vastag EPS hőszigetelő rendszer
    • Üvegszövet hálóval, élvédőkkel, ragasztva és dübelezve
  • Lábazati szigetelés:
    • 10 cm vastag XPS hőszigetelés
    • Mechanikai védelemmel ellátva

Födém- és tetőszigetelés:

  • 30–35 cm vastag cellulóz vagy szálas hőszigetelés
  • Párazáró és páraáteresztő fóliarendszerrel
  • Padlószigetelés:
    • 10–15 cm lépésálló EPS hőszigetelés
    • Technológiai rétegrend szerint

Vízszigetelés:

  • Kenhető vízszigetelés fürdőszobákban, WC-ben, teraszokon

🧱 Szárazépítés – gipszkarton szerkezetek

  • Válaszfalak:
    • 75–100 mm vastag acél vázszerkezet
    • Kétoldali gipszkarton borítással
    • Normál, impregnált vagy tűzgátló kivitelben
  • Álmennyezetek:
    • Függesztett gipszkarton álmennyezet
    • Gépészeti és világítási előkészítéssel
  • Dobozolások, előfalak:
    • Gépészeti vezetékek, szerelvények eltakarására

🏗️ Aljzatképzés – estrich beton

  • Aljzatbeton (esztrich):
    • 5–7 cm vastag cementesztrich
    • Szükség szerint hálóerősítéssel
    • Padlófűtés fogadására alkalmas kivitelben

🪟 Nyílászárók kapcsolódó szerkezetei

  • Ablakkávák és ajtócsatlakozások kialakítása
  • Hőhídmentes csatlakozások előkészítése
  • Gipszkarton és vakolható felületek kialakítása

Villanyszerelés

  • Teljes villamos alapszerelés
  • Vezetékek védőcsövezése falban, födémben és aljzatban
  • Dugaljak és kapcsolók kiépítése helyiségenként, alap kiosztás szerint
  • Mennyezeti és fali lámpakiállások kialakítása
  • Elektromos elosztószekrény kialakítása, kismegszakítókkal

Földelési rendszer és érintésvédelem

  • Gyengeáramú előkészítések (TV, internet)

Megjegyzés:

A lámpatestek és szerelvények típusa, dizájnja megrendelői választás szerint kerül meghatározásra.

🔥 Fűtési rendszer

  • Igény esetén elektromos padlófűtés kiépítése
  • Osztó-gyűjtő rendszer kialakítása
  • Helyiségenkénti fűtési körök
  • Szabályozhatóság előkészítése
  • Hűtő-fűtő klíma

🚿 Víz- és csatornahálózat

  • Hideg- és melegvíz vezetékek kiépítése
  • Szennyvízcsatorna-hálózat kialakítása
  • Vizes helyiségek teljes gépészeti előkészítése
  • Szerelvények kiállásainak kialakítása

🌬️ Kiegészítő gépészet

  • Gépészeti aknák, vezetékek eldobozolása
  • Szellőzési pontok előkészítése
  • Hőtermelő berendezés fogadására alkalmas rendszerkialakítás

A gépészeti és villamos szerelvények típusa, márkája és értékkategóriája a kiválasztott csomag és egyedi egyeztetés alapján kerül meghatározásra.

🧱 Hidegburkolatok

  • Kerámia burkolatok (fürdőszoba, WC, előtér, konyha)
  • Burkolás ragasztott technológiával
  • Vágások, élképzések, szegélyek kialakítása
  • Fal- és padlóburkolatok kialakítása
  • Kenhető vízszigetelésre történő burkolás vizes helyiségekben

🌳 Melegburkolatok

  • Laminált padló vagy vinyl burkolat
  • Alátétfóliával, dilatációs hézagokkal
  • Szegélylécek elhelyezése
  • Fűtési rendszerhez kompatibilis kivitel

🎨 Festés, felületképzés

  • Gipszkarton és vakolt felületek glettelése
  • Teljes falfelületek csiszolása
  • 2 réteg diszperziós falfestés, fehér színben
  • Mennyezetek festése

Építési technológia

SIP panel

SIP panel ház
SIP Panel Szerkezet

A SIP-panel (ami a Structural Insulated Panel rövidítése) egy modern, nagyteljesítményű építőanyag, amelyet leginkább egy óriási, rendkívül erős szendvicshez lehetne hasonlítani. A „szendvics” két külső rétege jellemzően valamilyen fa alapú lap (leggyakrabban OSB), a belseje pedig egy vastag, kemény szigetelőhab (általában expandált polisztirol, vagyis EPS), amelyet gyári körülmények között, nagy nyomáson ragasztanak össze.

Ez a szerkezet adja a technológia legnagyobb előnyeit. A panelek egyszerre látják el a teherhordó fal, a külső borítás és a hőszigetelés feladatát, egyetlen elemmé sűrítve a hagyományos építkezés több fázisát. Ennek köszönhetően a SIP-házak építése rendkívül gyors – a méretpontosra gyártott elemeket a helyszínen már csak össze kell szerelni, akár egy legót.

Az eredmény egy kivételesen stabil, légtömör és energiahatékony otthon. A megszakítás nélküli, vastag szigetelőmag miatt a SIP-házak fűtési és hűtési költségei rendkívül alacsonyak, az építési technológia pedig környezetbarát, mivel kevesebb hulladékkal jár. Egyszerűsége és hatékonysága miatt egyre népszerűbb választás világszerte.

Választható kivitelezési szintek

Nettó árak, az ÁFA 5%. Csomagok részletes tartalma itt érthető el!
Kulcsrakész ár

Miért rajtunk keresztül vegye fel a kapcsolatot a kivitelezővel?

Ingyenes

A közvetítői szolgáltatásunk teljes mértékben díjmentes az érdeklődők számára.

Független

Nem kötődünk egyetlen gyártóhoz vagy kivitelezőhöz sem. Az ország számos szakértő kivitelezője közül segítünk kiválasztani az Ön igényeinek leginkább megfelelő partnert.

Biztonságos

Csak olyan kivitelezőkkel működünk együtt, akik többéves szakmai tapasztalattal és hiteles referenciákkal rendelkeznek, ezzel garantálva a megbízhatóságot.

Ha rajtunk keresztül rendeli meg, akkor 100.000 Ft-os IKEA vásárlási utalványt adunk ajándékba!

Azok számára, akik rajtunk keresztül veszik fel a kapcsolatot egy kivitelezővel, nemcsak az ingyenes tanácsadás előnyeit biztosítjuk, hanem egy 100 000 Ft értékű IKEA ajándékkártyával is megajándékozzuk, amennyiben szerződéskötésre kerül sor. Bővebben itt!

100 000Ft értékű IKEA kupont adunk ajándékba!

További részletek

Leírás

A Csaba típusház egy igazi családi fészek, amely tökéletes egyensúlyt teremt a tágas közösségi életterek és a privát szférák között. A tervezés középpontjában a közel 50 m²-es, egybenyitott konyha-étkező-nappali áll, amely a ház vitathatatlanul legvilágosabb pontja. Ez a hatalmas, napfényes tér arra született, hogy otthont adjon a közös vacsoráknak, a hétvégi baráti összejöveteleknek vagy egy csendes délutáni pihenésnek.

Ahol a kényelem és a praktikum találkozik

A ház alaprajza intelligensen különíti el a nappali, nyüzsgő „nappali zónát” az éjszakai pihenő részlegtől. A 141,80 m²-es nettó alapterületen négy, kényelmes méretű hálószoba kapott helyet, melyek egy külön folyosóról nyílnak, biztosítva a családtagok nyugalmát. A reggeli csúcsidő többé nem jelent problémát, köszönhetően a két különálló, tágas fürdőszobának (egy 7,91 m²-es és egy 4,68 m²-es), valamint a bejárat mellett található praktikus háztartási helyiségnek.

Amikor a nappali a teraszon folytatódik

A Csaba ház egyik legvonzóbb tulajdonsága a terek áramlása. A nappaliból egy hatalmas üvegfelületen keresztül léphetünk ki a 25 m²-es teraszra, amely nyáron szinte megduplázza a közösségi teret. Ez a ház ideális választás 4-5 fős családok számára, akik tágas, világos otthont keresnek, ahol a gyerekeknek és a szülőknek is megvan a saját birodalma, de a közös programok is kényelmesen elférnek.

A jövő technológiájával építve

Ez az otthon modern SIP (Structural Insulated Panel) technológiával épül. Ez egy háromrétegű építőpanel, amely két OSB-lap között zárt, nagy hatékonyságú hőszigetelő magot tartalmaz. A gyárban, milliméter pontosan készülő elemek nemcsak kiemelkedő statikai stabilitást , hanem passzívház-szintű hőszigetelést is biztosítanak. Ez a gyakorlatban alacsony rezsiköltséget és jelentős energiamegtakarítást jelent. Az építkezés rendkívül gyors: egy kulcsrakész ház akár 120-160 nap alatt elkészülhet , időjárástól függetlenül és szinte hulladékmentesen.

Megbízható kivitelezés egyedi garanciákkal

A kivitelezést a 2013 óta működő Generálkommandó csapata végzi , akik megbízhatóságukról és precizitásukról ismertek. Egyedülálló előny, hogy minden szakembert maguk foglalkoztatnak , így az ügyfélnek csak egyetlen projektvezetővel kell tartania a kapcsolatot, időt és energiát spórolva. A cég inflációtól független árgaranciát , valamint kötbérrel megerősített kezdési és befejezési határidőt is vállal.

Élvezze a nyugalmat egy olyan otthonban, amely tökéletesen igazodik a családja igényeihez. Kérjen ingyenes konzultációt kollégánktól!

Alaprajz

Részletes műszaki tartalom SIP házak esetén

Az árajánlat a készház teljes kivitelezésének főbb műszaki elemeit tartalmazza, az alábbi műszaki paraméterekkel:

Kulcsrakész állapot

Az alapár tartalmazza:

🧱 Hő- és vízszigetelés

  • Homlokzati hőszigetelés:
    • 15–20 cm vastag EPS hőszigetelő rendszer
    • Üvegszövet hálóval, élvédőkkel, ragasztva és dübelezve
  • Lábazati szigetelés:
    • 10 cm vastag XPS hőszigetelés
    • Mechanikai védelemmel ellátva

Födém- és tetőszigetelés:

  • 30–35 cm vastag cellulóz vagy szálas hőszigetelés
  • Párazáró és páraáteresztő fóliarendszerrel
  • Padlószigetelés:
    • 10–15 cm lépésálló EPS hőszigetelés
    • Technológiai rétegrend szerint

Vízszigetelés:

  • Kenhető vízszigetelés fürdőszobákban, WC-ben, teraszokon

🧱 Szárazépítés – gipszkarton szerkezetek

  • Válaszfalak:
    • 75–100 mm vastag acél vázszerkezet
    • Kétoldali gipszkarton borítással
    • Normál, impregnált vagy tűzgátló kivitelben
  • Álmennyezetek:
    • Függesztett gipszkarton álmennyezet
    • Gépészeti és világítási előkészítéssel
  • Dobozolások, előfalak:
    • Gépészeti vezetékek, szerelvények eltakarására

🏗️ Aljzatképzés – estrich beton

  • Aljzatbeton (esztrich):
    • 5–7 cm vastag cementesztrich
    • Szükség szerint hálóerősítéssel
    • Padlófűtés fogadására alkalmas kivitelben

🪟 Nyílászárók kapcsolódó szerkezetei

  • Ablakkávák és ajtócsatlakozások kialakítása
  • Hőhídmentes csatlakozások előkészítése
  • Gipszkarton és vakolható felületek kialakítása

Villanyszerelés

  • Teljes villamos alapszerelés
  • Vezetékek védőcsövezése falban, födémben és aljzatban
  • Dugaljak és kapcsolók kiépítése helyiségenként, alap kiosztás szerint
  • Mennyezeti és fali lámpakiállások kialakítása
  • Elektromos elosztószekrény kialakítása, kismegszakítókkal

Földelési rendszer és érintésvédelem

  • Gyengeáramú előkészítések (TV, internet)

Megjegyzés:

A lámpatestek és szerelvények típusa, dizájnja megrendelői választás szerint kerül meghatározásra.

🔥 Fűtési rendszer

  • Igény esetén elektromos padlófűtés kiépítése
  • Osztó-gyűjtő rendszer kialakítása
  • Helyiségenkénti fűtési körök
  • Szabályozhatóság előkészítése
  • Hűtő-fűtő klíma

🚿 Víz- és csatornahálózat

  • Hideg- és melegvíz vezetékek kiépítése
  • Szennyvízcsatorna-hálózat kialakítása
  • Vizes helyiségek teljes gépészeti előkészítése
  • Szerelvények kiállásainak kialakítása

🌬️ Kiegészítő gépészet

  • Gépészeti aknák, vezetékek eldobozolása
  • Szellőzési pontok előkészítése
  • Hőtermelő berendezés fogadására alkalmas rendszerkialakítás

A gépészeti és villamos szerelvények típusa, márkája és értékkategóriája a kiválasztott csomag és egyedi egyeztetés alapján kerül meghatározásra.

🧱 Hidegburkolatok

  • Kerámia burkolatok (fürdőszoba, WC, előtér, konyha)
  • Burkolás ragasztott technológiával
  • Vágások, élképzések, szegélyek kialakítása
  • Fal- és padlóburkolatok kialakítása
  • Kenhető vízszigetelésre történő burkolás vizes helyiségekben

🌳 Melegburkolatok

  • Laminált padló vagy vinyl burkolat
  • Alátétfóliával, dilatációs hézagokkal
  • Szegélylécek elhelyezése
  • Fűtési rendszerhez kompatibilis kivitel

🎨 Festés, felületképzés

  • Gipszkarton és vakolt felületek glettelése
  • Teljes falfelületek csiszolása
  • 2 réteg diszperziós falfestés, fehér színben
  • Mennyezetek festése

Technológia

A SIP-panel (ami a Structural Insulated Panel rövidítése) egy modern, nagyteljesítményű építőanyag, amelyet leginkább egy óriási, rendkívül erős szendvicshez lehetne hasonlítani. A „szendvics” két külső rétege jellemzően valamilyen fa alapú lap (leggyakrabban OSB), a belseje pedig egy vastag, kemény szigetelőhab (általában expandált polisztirol, vagyis EPS), amelyet gyári körülmények között, nagy nyomáson ragasztanak össze.

Ez a szerkezet adja a technológia legnagyobb előnyeit. A panelek egyszerre látják el a teherhordó fal, a külső borítás és a hőszigetelés feladatát, egyetlen elemmé sűrítve a hagyományos építkezés több fázisát. Ennek köszönhetően a SIP-házak építése rendkívül gyors – a méretpontosra gyártott elemeket a helyszínen már csak össze kell szerelni, akár egy legót.

Az eredmény egy kivételesen stabil, légtömör és energiahatékony otthon. A megszakítás nélküli, vastag szigetelőmag miatt a SIP-házak fűtési és hűtési költségei rendkívül alacsonyak, az építési technológia pedig környezetbarát, mivel kevesebb hulladékkal jár. Egyszerűsége és hatékonysága miatt egyre népszerűbb választás világszerte.

General Kommando

PARTNER

Generál Kommandó

A típusház kivitelezője:

General Kommando

Generál Kommandó

A GenerálKommandó megbízható, tapasztalt kivitelezőcsapat, akik a minőségi, precíz munkavégzés mellett elkötelezettek a határidők és az ügyféligények maradéktalan teljesítése iránt. Projektjeikben a szakmai igényesség és az átlátható, partneri kommunikáció találkozik, így az építkezés folyamata biztonságos és kiszámítható élménnyé válik. SIP paneles és Leier Kéregfalas készház kivitelezést is vállal.

További Generál Kommandó készházak
114.25 m²
4 szoba
79.2 m²
3 szoba
76.45 m²
4 szoba
113.28 m²
4 szoba
97.73 m²
4 szoba
118.47 m²
4 szoba

Hasonló házak

88 m²
4 szoba
Szerkezetkész ár: 35 000 000 Ft
40 m²
2 szoba
Szerkezetkész ár: 14 495 040 Ft
32 m²
3 szoba
Szerkezetkész ár: 10 018 400 Ft
32 m²
3 szoba
Szerkezetkész ár: 10 018 400 Ft
32 m²
3 szoba
Szerkezetkész ár: 10 018 400 Ft
32 m²
3 szoba
Szerkezetkész ár: 10 018 400 Ft

Otthon Start Hitel

Akár 150 millió forintos családi házat is építhetsz, amire akár 50 milló forint hitelt is felvehetsz, 3%-is fix kamattal!