A kivitelezőnél az alábbi készültségi szintek választhatóak. Nettó árak, az ÁFA 5%. Csomagok részletes tartalma itt érthető el!
A közvetítői szolgáltatásunk teljes mértékben díjmentes az érdeklődők számára.
Nem kötődünk egyetlen gyártóhoz vagy kivitelezőhöz sem. Az ország számos szakértő kivitelezője közül segítünk kiválasztani az Ön igényeinek leginkább megfelelő partnert.
Csak olyan kivitelezőkkel működünk együtt, akik többéves szakmai tapasztalattal és hiteles referenciákkal rendelkeznek, ezzel garantálva a megbízhatóságot.
Szerkezetkész ár
Paraméterek
m²
Leírás
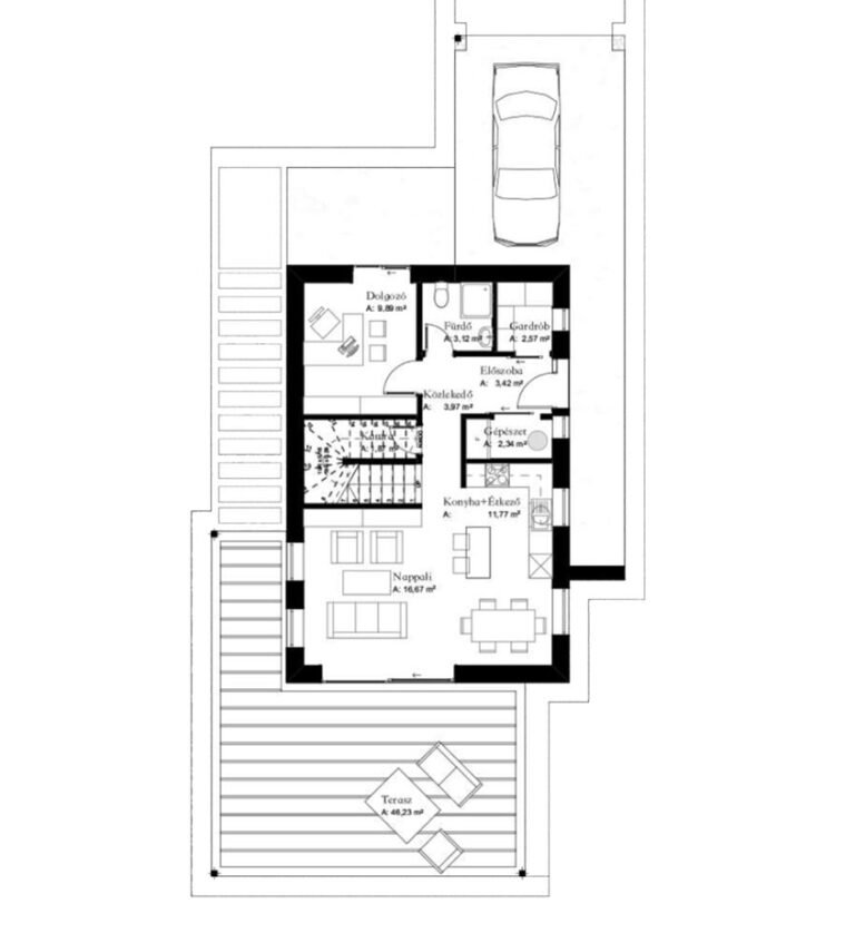
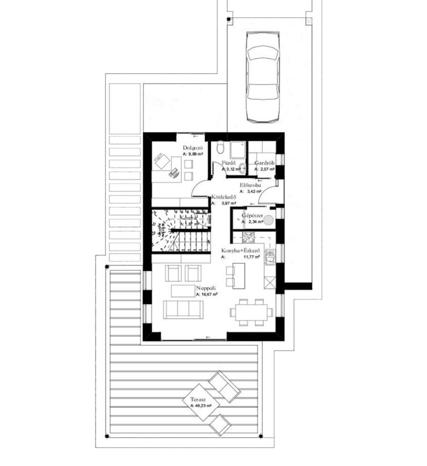
Ez a kétszintes, tágas készház a modern családi élet minden igényét kielégíti. A földszinten a nappali és az étkező-konyha egybefüggő teret alkot, amely közvetlenül kapcsolódik a nagy, fedett teraszhoz – tökéletes helyszíne a közös reggeliknek vagy nyári kerti vacsoráknak. A földszinten található egy dolgozószoba is, amely ideális otthoni munkához, valamint egy kisebb fürdő és gardrób, így minden praktikum kéznél van.
Az emeleti alaprajz három hálószobát kínál: egy nagyobb, szülői szobát, valamint két kisebbet, amelyek gyerekszobának vagy vendégszobának is tökéletesek. A tágas fürdőszoba és a külön gardrób biztosítják a kényelmet és a rendezettséget. A ház így 4-5 fős család számára nyújt ideális, hosszú távú életteret, ahol mindenkinek jut saját kuckója.
Ez a háztípus ideális választás családoknak, akik szeretnék ötvözni a modern, energiatakarékos megoldásokat a természet közelségével. Tökéletes fiatal pároknak, akik gyermekvállalás előtt állnak, vagy többgyermekes családoknak, akiknek fontos a tágas közös élettér és a különálló hálószobák. Az otthon kialakítása lehetőséget ad arra is, hogy a dolgozószoba vendégszobaként működjön, így a barátok és rokonok fogadása sem jelent gondot.
A ház SIP, vagy magyarosan HÉT (Hőszigetelt Építési Panel) könnyűszerkezetes technológiával épül, amely kiváló hőszigetelést, gyors kivitelezést és alacsony rezsiköltséget biztosít. A falszerkezetek többrétegű szigeteléssel készülnek, a fűtést pedig energiatakarékos hőszivattyú és padlófűtés biztosítja. Az épület minden részlete a korszerű és fenntartható otthon megteremtését szolgálja, így hosszú távon is értékálló választás.
Ez a típusház a modern családi élet kényelmét és a természetközeli harmóniát ötvözi egy energiatakarékos, jövőbiztos otthonban. Kérjen ingyenes konzultációt kollégánktól, és induljon el saját új otthona felé!
Alaprajz
Kattintson az alaprajzra a nagyobb mérethez!
A Király Házak egyedi igényeket is figyelembe vesz, így a kivitelezés bizonyos részei változtathatók (pl.: szigetelés típus, hőszivattyú típus, falak színe…) Ezek a módosítások árváltozással járhatnak.
A teljes műszaki tartalom itt érhető el.
A Király Házak egyedi igényeket is figyelembe vesz, így a kivitelezés bizonyos részei változtathatók (pl.: szigetelés típus, hőszivattyú típus, falak színe…) Ezek a módosítások árváltozással járhatnak.
A teljes műszaki tartalom itt érhető el.
A Király Házak egyedi igényeket is figyelembe vesz, így a kivitelezés bizonyos részei változtathatók (pl.: szigetelés típus, hőszivattyú típus, falak színe…) Ezek a módosítások árváltozással járhatnak.
A teljes műszaki tartalom itt érhető el.
Építési technológia


A SIP-panel (ami a Structural Insulated Panel rövidítése) egy modern, nagyteljesítményű építőanyag, amelyet leginkább egy óriási, rendkívül erős szendvicshez lehetne hasonlítani. A „szendvics” két külső rétege jellemzően valamilyen fa alapú lap (leggyakrabban OSB), a belseje pedig egy vastag, kemény szigetelőhab (általában expandált polisztirol, vagyis EPS), amelyet gyári körülmények között, nagy nyomáson ragasztanak össze.
Ez a szerkezet adja a technológia legnagyobb előnyeit. A panelek egyszerre látják el a teherhordó fal, a külső borítás és a hőszigetelés feladatát, egyetlen elemmé sűrítve a hagyományos építkezés több fázisát. Ennek köszönhetően a SIP-házak építése rendkívül gyors – a méretpontosra gyártott elemeket a helyszínen már csak össze kell szerelni, akár egy legót.
Az eredmény egy kivételesen stabil, légtömör és energiahatékony otthon. A megszakítás nélküli, vastag szigetelőmag miatt a SIP-házak fűtési és hűtési költségei rendkívül alacsonyak, az építési technológia pedig környezetbarát, mivel kevesebb hulladékkal jár. Egyszerűsége és hatékonysága miatt egyre népszerűbb választás világszerte.

Miért rajtunk keresztül vegye fel a kapcsolatot a kivitelezővel?
A közvetítői szolgáltatásunk teljes mértékben díjmentes az érdeklődők számára.
Nem kötődünk egyetlen gyártóhoz vagy kivitelezőhöz sem. Az ország számos szakértő kivitelezője közül segítünk kiválasztani az Ön igényeinek leginkább megfelelő partnert.
Csak olyan kivitelezőkkel működünk együtt, akik többéves szakmai tapasztalattal és hiteles referenciákkal rendelkeznek, ezzel garantálva a megbízhatóságot.

Ha rajtunk keresztül rendeli meg, akkor 100.000 Ft-os IKEA vásárlási utalványt adunk ajándékba!
Azok számára, akik rajtunk keresztül veszik fel a kapcsolatot egy kivitelezővel, nemcsak az ingyenes tanácsadás előnyeit biztosítjuk, hanem egy 100 000 Ft értékű IKEA ajándékkártyával is megajándékozzuk, amennyiben szerződéskötésre kerül sor. Bővebben itt!

100 000Ft értékű IKEA kupont adunk ajándékba!
További részletek
Leírás
Ez a kétszintes, tágas készház a modern családi élet minden igényét kielégíti. A földszinten a nappali és az étkező-konyha egybefüggő teret alkot, amely közvetlenül kapcsolódik a nagy, fedett teraszhoz – tökéletes helyszíne a közös reggeliknek vagy nyári kerti vacsoráknak. A földszinten található egy dolgozószoba is, amely ideális otthoni munkához, valamint egy kisebb fürdő és gardrób, így minden praktikum kéznél van.
Az emeleti alaprajz három hálószobát kínál: egy nagyobb, szülői szobát, valamint két kisebbet, amelyek gyerekszobának vagy vendégszobának is tökéletesek. A tágas fürdőszoba és a külön gardrób biztosítják a kényelmet és a rendezettséget. A ház így 4-5 fős család számára nyújt ideális, hosszú távú életteret, ahol mindenkinek jut saját kuckója.
Ez a háztípus ideális választás családoknak, akik szeretnék ötvözni a modern, energiatakarékos megoldásokat a természet közelségével. Tökéletes fiatal pároknak, akik gyermekvállalás előtt állnak, vagy többgyermekes családoknak, akiknek fontos a tágas közös élettér és a különálló hálószobák. Az otthon kialakítása lehetőséget ad arra is, hogy a dolgozószoba vendégszobaként működjön, így a barátok és rokonok fogadása sem jelent gondot.
A ház SIP, vagy magyarosan HÉT (Hőszigetelt Építési Panel) könnyűszerkezetes technológiával épül, amely kiváló hőszigetelést, gyors kivitelezést és alacsony rezsiköltséget biztosít. A falszerkezetek többrétegű szigeteléssel készülnek, a fűtést pedig energiatakarékos hőszivattyú és padlófűtés biztosítja. Az épület minden részlete a korszerű és fenntartható otthon megteremtését szolgálja, így hosszú távon is értékálló választás.
Ez a típusház a modern családi élet kényelmét és a természetközeli harmóniát ötvözi egy energiatakarékos, jövőbiztos otthonban. Kérjen ingyenes konzultációt kollégánktól, és induljon el saját új otthona felé!
Alaprajz
A Király Házak egyedi igényeket is figyelembe vesz, így a kivitelezés bizonyos részei változtathatók (pl.: szigetelés típus, hőszivattyú típus, falak színe…) Ezek a módosítások árváltozással járhatnak.
A teljes műszaki tartalom itt érhető el.
A Király Házak egyedi igényeket is figyelembe vesz, így a kivitelezés bizonyos részei változtathatók (pl.: szigetelés típus, hőszivattyú típus, falak színe…) Ezek a módosítások árváltozással járhatnak.
A teljes műszaki tartalom itt érhető el.
A Király Házak egyedi igényeket is figyelembe vesz, így a kivitelezés bizonyos részei változtathatók (pl.: szigetelés típus, hőszivattyú típus, falak színe…) Ezek a módosítások árváltozással járhatnak.
A teljes műszaki tartalom itt érhető el.
Technológia
A SIP-panel (ami a Structural Insulated Panel rövidítése) egy modern, nagyteljesítményű építőanyag, amelyet leginkább egy óriási, rendkívül erős szendvicshez lehetne hasonlítani. A „szendvics” két külső rétege jellemzően valamilyen fa alapú lap (leggyakrabban OSB), a belseje pedig egy vastag, kemény szigetelőhab (általában expandált polisztirol, vagyis EPS), amelyet gyári körülmények között, nagy nyomáson ragasztanak össze.
Ez a szerkezet adja a technológia legnagyobb előnyeit. A panelek egyszerre látják el a teherhordó fal, a külső borítás és a hőszigetelés feladatát, egyetlen elemmé sűrítve a hagyományos építkezés több fázisát. Ennek köszönhetően a SIP-házak építése rendkívül gyors – a méretpontosra gyártott elemeket a helyszínen már csak össze kell szerelni, akár egy legót.
Az eredmény egy kivételesen stabil, légtömör és energiahatékony otthon. A megszakítás nélküli, vastag szigetelőmag miatt a SIP-házak fűtési és hűtési költségei rendkívül alacsonyak, az építési technológia pedig környezetbarát, mivel kevesebb hulladékkal jár. Egyszerűsége és hatékonysága miatt egyre népszerűbb választás világszerte.

A típusház kivitelezője:

Hasonló házak

Otthon Start Hitel
Akár 150 millió forintos családi házat is építhetsz, amire akár 50 milló forint hitelt is felvehetsz, 3%-is fix kamattal!
Segítünk eligazodni a hazai készházpiacon, hogy magabiztos döntést hozhasson.
Lépjen kapcsolatba velünk még ma, és találja meg a legmegbízhatóbb kivitelezőt szakértői segítséggel.
KATEGÓRIÁK
© keszhazkereso.hu – 2025 Minden jog fenntartva.
© keszhazkereso.hu
2025 Minden jog fenntartva.