A közvetítői szolgáltatásunk teljes mértékben díjmentes az érdeklődők számára.
Nem kötődünk egyetlen gyártóhoz vagy kivitelezőhöz sem. Az ország számos szakértő kivitelezője közül segítünk kiválasztani az Ön igényeinek leginkább megfelelő partnert.
Csak olyan kivitelezőkkel működünk együtt, akik többéves szakmai tapasztalattal és hiteles referenciákkal rendelkeznek, ezzel garantálva a megbízhatóságot.
Szerkezetkész ár
Paraméterek
m²
Leírás
Ez a 32 m²-es alapterületű épület a szabadság és a modern esztétika tökéletes ötvözete, amely pillanatok alatt otthonos menedéket teremt bármilyen környezetben. A hatalmas, padlótól mennyezetig érő üvegfelületek nemcsak eleganciát sugároznak, hanem természetes fénnyel árasztják el a belső tereket, vizuálisan tágítva a határokat. A sötétszürke külső borítás és a belső terekben megjelenő meleg fahatású elemek együttesen olyan prémium megjelenést kölcsönöznek a háznak, amely a legigényesebb pihenni vágyók elvárásait is felülmúlja.
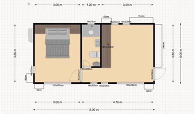
A ház belső elrendezése a maximális funkcionalitásra törekszik, minden négyzetmétert okosan kihasználva. Az alaprajz tanúsága szerint a központi teret a 3,40 méter szélességű nappali alkotja, ahol a beépített TV-fal és a klímaberendezés is helyet kapott a felhőtlen kikapcsolódáshoz. A hálószoba 3,00 méteres szélességével és az ágy fölé tervezett bőséges szekrénysorral privát és rendezett környezetet biztosít a pihenéshez. A két lakótér között elhelyezkedő fürdőszoba modern zuhanyzóval és esztétikus fehér szaniterekkel teszi teljessé a komfortot, miközben az épület kompakt mérete ellenére is tágasnak hat a vékony, de rendkívül erős falaknak köszönhetően.
Ez a típus kifejezetten ajánlott azoknak a pároknak vagy egyedülállóknak, akik egy prémium minőségű, mégis könnyen fenntartható hétvégi házat keresnek vízpartra vagy erdei környezetbe. Két fő számára a 32 m²-es élettér akár életvitelszerű használatra is kényelmes megoldást nyújt, különösen azoknak, akik a minimalista életmódot és a rendezett, modern környezetet preferálják. Kiváló választás lehet azoknak is, akik elkerülnék a hagyományos építkezéssel járó hosszú várakozási időt és stresszt, hiszen ez a ház gyorsan telepíthető és azonnal költözhető.
Az épület a legkorszerűbb szendvicspanel technológiával készült, amelynek lelke a kiváló hőszigetelő képességű PIR habmag. Ez a megoldás rendkívül alacsony hővezetési tényezőt (λ≈0,024W/mK) biztosít, így a ház télen és nyáron is kiemelkedő energiahatékonysággal üzemeltethető. A technológia további nagy előnye a tűzbiztonság, mivel a PIR mag tűz hatására szenesedik, gátolva a lángok terjedését. A horganyzott acéllemez fegyverzet rendkívül tartós, ellenáll az UV-sugárzásnak és a korróziónak, a precíz illesztések pedig garantálják a huzat- és páramentes belső levegőt.
A házat a piacvezető Kontex Kft. gyártja, amely több mint 30 éves szakmai múlttal és 600-nál is több sikeresen átadott mobilházzal rendelkezik. A gyártó saját ajkai üzemében a legmodernebb CNC lézervágó és élhajlító gépekkel, valamint a régió legnagyobb ipari festő kabinjával dolgozik, így a teljes gyártási folyamatot szigorú kontroll alatt tartja. Ügyfeleik számára ez megbízhatóságot és professzionális, kulcsrakész kivitelezést jelent, ahol a tervezéstől az átadásig minden feladat egyetlen szakértő kézben összpontosul.
Ebben a házban a legmodernebb ipari technológia és az otthonos kényelem találkozik, hogy Önnek csak a pihenésre kelljen koncentrálnia.
Kérjen ingyenes konzultációt kollégánktól!
Alaprajz
Kattintson az alaprajzra a nagyobb mérethez!
Építési technológia

Szendvicspanel szerkezetű mobilházaink 3 és 4 évszakos kivitelben is elérhetőek. A 6x3m, 8x3m, 8x4m, 11x3m, 11x4m, mind standard méretek, ezutóbbi azaz a 44m2 alapterület a maximálisan elérhető, mint gyártástechnológiánk, mint szállíthatósági szempontok szerint. Áruk kiviteltől függően többnyire 228-450.000 Ft. / négyzetméter között alakul, az üres felszerelés nélküli alapár és a standard kivitel esetében.

Miért rajtunk keresztül vegye fel a kapcsolatot a kivitelezővel?
A közvetítői szolgáltatásunk teljes mértékben díjmentes az érdeklődők számára.
Nem kötődünk egyetlen gyártóhoz vagy kivitelezőhöz sem. Az ország számos szakértő kivitelezője közül segítünk kiválasztani az Ön igényeinek leginkább megfelelő partnert.
Csak olyan kivitelezőkkel működünk együtt, akik többéves szakmai tapasztalattal és hiteles referenciákkal rendelkeznek, ezzel garantálva a megbízhatóságot.

Ha rajtunk keresztül rendeli meg, akkor 100.000 Ft-os IKEA vásárlási utalványt adunk ajándékba!
Azok számára, akik rajtunk keresztül veszik fel a kapcsolatot egy kivitelezővel, nemcsak az ingyenes tanácsadás előnyeit biztosítjuk, hanem egy 100 000 Ft értékű IKEA ajándékkártyával is megajándékozzuk, amennyiben szerződéskötésre kerül sor. Bővebben itt!

100 000Ft értékű IKEA kupont adunk ajándékba!
További részletek
Leírás
Ez a 32 m²-es alapterületű épület a szabadság és a modern esztétika tökéletes ötvözete, amely pillanatok alatt otthonos menedéket teremt bármilyen környezetben. A hatalmas, padlótól mennyezetig érő üvegfelületek nemcsak eleganciát sugároznak, hanem természetes fénnyel árasztják el a belső tereket, vizuálisan tágítva a határokat. A sötétszürke külső borítás és a belső terekben megjelenő meleg fahatású elemek együttesen olyan prémium megjelenést kölcsönöznek a háznak, amely a legigényesebb pihenni vágyók elvárásait is felülmúlja.
A ház belső elrendezése a maximális funkcionalitásra törekszik, minden négyzetmétert okosan kihasználva. Az alaprajz tanúsága szerint a központi teret a 3,40 méter szélességű nappali alkotja, ahol a beépített TV-fal és a klímaberendezés is helyet kapott a felhőtlen kikapcsolódáshoz. A hálószoba 3,00 méteres szélességével és az ágy fölé tervezett bőséges szekrénysorral privát és rendezett környezetet biztosít a pihenéshez. A két lakótér között elhelyezkedő fürdőszoba modern zuhanyzóval és esztétikus fehér szaniterekkel teszi teljessé a komfortot, miközben az épület kompakt mérete ellenére is tágasnak hat a vékony, de rendkívül erős falaknak köszönhetően.
Ez a típus kifejezetten ajánlott azoknak a pároknak vagy egyedülállóknak, akik egy prémium minőségű, mégis könnyen fenntartható hétvégi házat keresnek vízpartra vagy erdei környezetbe. Két fő számára a 32 m²-es élettér akár életvitelszerű használatra is kényelmes megoldást nyújt, különösen azoknak, akik a minimalista életmódot és a rendezett, modern környezetet preferálják. Kiváló választás lehet azoknak is, akik elkerülnék a hagyományos építkezéssel járó hosszú várakozási időt és stresszt, hiszen ez a ház gyorsan telepíthető és azonnal költözhető.
Az épület a legkorszerűbb szendvicspanel technológiával készült, amelynek lelke a kiváló hőszigetelő képességű PIR habmag. Ez a megoldás rendkívül alacsony hővezetési tényezőt (λ≈0,024W/mK) biztosít, így a ház télen és nyáron is kiemelkedő energiahatékonysággal üzemeltethető. A technológia további nagy előnye a tűzbiztonság, mivel a PIR mag tűz hatására szenesedik, gátolva a lángok terjedését. A horganyzott acéllemez fegyverzet rendkívül tartós, ellenáll az UV-sugárzásnak és a korróziónak, a precíz illesztések pedig garantálják a huzat- és páramentes belső levegőt.
A házat a piacvezető Kontex Kft. gyártja, amely több mint 30 éves szakmai múlttal és 600-nál is több sikeresen átadott mobilházzal rendelkezik. A gyártó saját ajkai üzemében a legmodernebb CNC lézervágó és élhajlító gépekkel, valamint a régió legnagyobb ipari festő kabinjával dolgozik, így a teljes gyártási folyamatot szigorú kontroll alatt tartja. Ügyfeleik számára ez megbízhatóságot és professzionális, kulcsrakész kivitelezést jelent, ahol a tervezéstől az átadásig minden feladat egyetlen szakértő kézben összpontosul.
Ebben a házban a legmodernebb ipari technológia és az otthonos kényelem találkozik, hogy Önnek csak a pihenésre kelljen koncentrálnia.
Kérjen ingyenes konzultációt kollégánktól!
Alaprajz
Technológia
Szendvicspanel szerkezetű mobilházaink 3 és 4 évszakos kivitelben is elérhetőek. A 6x3m, 8x3m, 8x4m, 11x3m, 11x4m, mind standard méretek, ezutóbbi azaz a 44m2 alapterület a maximálisan elérhető, mint gyártástechnológiánk, mint szállíthatósági szempontok szerint. Áruk kiviteltől függően többnyire 228-450.000 Ft. / négyzetméter között alakul, az üres felszerelés nélküli alapár és a standard kivitel esetében.

A típusház kivitelezője:

Hasonló házak

Otthon Start Hitel
Akár 150 millió forintos családi házat is építhetsz, amire akár 50 milló forint hitelt is felvehetsz, 3%-is fix kamattal!