A közvetítői szolgáltatásunk teljes mértékben díjmentes az érdeklődők számára.
Nem kötődünk egyetlen gyártóhoz vagy kivitelezőhöz sem. Az ország számos szakértő kivitelezője közül segítünk kiválasztani az Ön igényeinek leginkább megfelelő partnert.
Csak olyan kivitelezőkkel működünk együtt, akik többéves szakmai tapasztalattal és hiteles referenciákkal rendelkeznek, ezzel garantálva a megbízhatóságot.
Szerkezetkész ár
Paraméterek
m²
Leírás
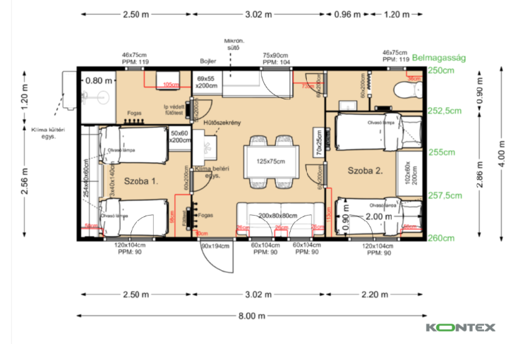
Ez a 32 m²-es mobilház a modern szabadság és a praktikus kényelem megtestesítője, amely azonnal otthonos melegséget áraszt, amint belép az ajtón. A 8,00 x 4,00 méteres alapterület minden egyes centimétere tudatos tervezés eredménye, hogy a belső tér tágasabbnak hasson, mint azt elsőre gondolná. A központi élettér a ház szíve, ahol a konyha, az étkező és a nappali egysége hívogat közös főzésekre és esti beszélgetésekre, miközben a hatalmas ablakokon keresztül folyamatos a kapcsolat a külvilággal.
Ez a típus különösen vonzó a családok és a baráti társaságok számára, hiszen az alaprajz két különálló, privát szférát biztosító hálószobát kínál. A „Szoba 1” és „Szoba 2” elrendezése lehetővé teszi, hogy négy ember kényelmesen, egymás zavarása nélkül pihenhessen, így ideális választás kétgyermekes családoknak vagy olyan pároknak, akik gyakran fogadnak vendégeket. Az okos térkihasználásnak köszönhetően a 2,50 és 2,60 méter között változó belmagasság levegős érzetet ad, elkerülve a bezártság érzését, ami a hagyományos kis házaknál gyakori probléma.
A ház kiválóan alkalmas hétvégi pihenőhelynek a természet lágyán, de technikai felszereltsége – például a beépített klíma és a modern konyhatechnológia – lehetővé teszi az életvitelszerű használatot is. Azoknak ajánljuk, akik értékelik a minimalista, mégis prémium életstílust, és nem szeretnének évekig tartó építkezéssel bajlódni. Legyen szó egy vízparti telekről vagy egy erdei tisztásról, ez a mobilház kompromisszummentes kényelmet nyújt mind a négy évszakban.
A szerkezet lelke a poliizocianurát (PIR) habmaggal ellátott szendvicspanel technológia, amely kiemelkedő hőszigetelő képességet biztosít (λ≈0,024W/mK). Ez a megoldás garantálja, hogy a falak vékonyak maradjanak – maximalizálva a belső teret –, miközben az épület energetikai hatékonysága vetekszik a legmodernebb téglaépületekével. Az acélszerkezet és a horganyzott acéllemez fegyverzet rendkívüli merevséget ad a háznak, így az ellenáll a szállítás és telepítés dinamikus hatásainak, a speciális illesztések pedig örökre száműzik a huzatot és a penészt az otthonából.
A házat a Kontex Kft. készíti, amely több mint 30 éves ipari tapasztalattal és 600-nál is több sikeresen átadott mobilházzal a háta mögött Magyarország piacvezető szereplője. A saját ajkai üzemben végzett gyártás, a precíziós CNC lézervágás és a professzionális festési technológia biztosítja, hogy minden egyes elem megfeleljen a legszigorúbb minőségi követelményeknek. A leendő tulajdonosok számára ez egyet jelent a biztonsággal: egy tőkeerős, megbízható partner felügyeli a folyamatot a tervezéstől egészen a kulcsrakész átadásig, ahol a határidő valóban szent.
Ebben a mobilházban a gondtalan pihenés nem csak ígéret, hanem a mindennapok valósága, ahol a rezsiköltségek helyett csak a táj szépségére kell figyelnie.
Kérjen ingyenes konzultációt kollégánktól!
Alaprajz
Kattintson az alaprajzra a nagyobb mérethez!
Építési technológia

Szendvicspanel szerkezetű mobilházaink 3 és 4 évszakos kivitelben is elérhetőek. A 6x3m, 8x3m, 8x4m, 11x3m, 11x4m, mind standard méretek, ezutóbbi azaz a 44m2 alapterület a maximálisan elérhető, mint gyártástechnológiánk, mint szállíthatósági szempontok szerint. Áruk kiviteltől függően többnyire 228-450.000 Ft. / négyzetméter között alakul, az üres felszerelés nélküli alapár és a standard kivitel esetében.

Miért rajtunk keresztül vegye fel a kapcsolatot a kivitelezővel?
A közvetítői szolgáltatásunk teljes mértékben díjmentes az érdeklődők számára.
Nem kötődünk egyetlen gyártóhoz vagy kivitelezőhöz sem. Az ország számos szakértő kivitelezője közül segítünk kiválasztani az Ön igényeinek leginkább megfelelő partnert.
Csak olyan kivitelezőkkel működünk együtt, akik többéves szakmai tapasztalattal és hiteles referenciákkal rendelkeznek, ezzel garantálva a megbízhatóságot.

Ha rajtunk keresztül rendeli meg, akkor 100.000 Ft-os IKEA vásárlási utalványt adunk ajándékba!
Azok számára, akik rajtunk keresztül veszik fel a kapcsolatot egy kivitelezővel, nemcsak az ingyenes tanácsadás előnyeit biztosítjuk, hanem egy 100 000 Ft értékű IKEA ajándékkártyával is megajándékozzuk, amennyiben szerződéskötésre kerül sor. Bővebben itt!

100 000Ft értékű IKEA kupont adunk ajándékba!
További részletek
Leírás
Ez a 32 m²-es mobilház a modern szabadság és a praktikus kényelem megtestesítője, amely azonnal otthonos melegséget áraszt, amint belép az ajtón. A 8,00 x 4,00 méteres alapterület minden egyes centimétere tudatos tervezés eredménye, hogy a belső tér tágasabbnak hasson, mint azt elsőre gondolná. A központi élettér a ház szíve, ahol a konyha, az étkező és a nappali egysége hívogat közös főzésekre és esti beszélgetésekre, miközben a hatalmas ablakokon keresztül folyamatos a kapcsolat a külvilággal.
Ez a típus különösen vonzó a családok és a baráti társaságok számára, hiszen az alaprajz két különálló, privát szférát biztosító hálószobát kínál. A „Szoba 1” és „Szoba 2” elrendezése lehetővé teszi, hogy négy ember kényelmesen, egymás zavarása nélkül pihenhessen, így ideális választás kétgyermekes családoknak vagy olyan pároknak, akik gyakran fogadnak vendégeket. Az okos térkihasználásnak köszönhetően a 2,50 és 2,60 méter között változó belmagasság levegős érzetet ad, elkerülve a bezártság érzését, ami a hagyományos kis házaknál gyakori probléma.
A ház kiválóan alkalmas hétvégi pihenőhelynek a természet lágyán, de technikai felszereltsége – például a beépített klíma és a modern konyhatechnológia – lehetővé teszi az életvitelszerű használatot is. Azoknak ajánljuk, akik értékelik a minimalista, mégis prémium életstílust, és nem szeretnének évekig tartó építkezéssel bajlódni. Legyen szó egy vízparti telekről vagy egy erdei tisztásról, ez a mobilház kompromisszummentes kényelmet nyújt mind a négy évszakban.
A szerkezet lelke a poliizocianurát (PIR) habmaggal ellátott szendvicspanel technológia, amely kiemelkedő hőszigetelő képességet biztosít (λ≈0,024W/mK). Ez a megoldás garantálja, hogy a falak vékonyak maradjanak – maximalizálva a belső teret –, miközben az épület energetikai hatékonysága vetekszik a legmodernebb téglaépületekével. Az acélszerkezet és a horganyzott acéllemez fegyverzet rendkívüli merevséget ad a háznak, így az ellenáll a szállítás és telepítés dinamikus hatásainak, a speciális illesztések pedig örökre száműzik a huzatot és a penészt az otthonából.
A házat a Kontex Kft. készíti, amely több mint 30 éves ipari tapasztalattal és 600-nál is több sikeresen átadott mobilházzal a háta mögött Magyarország piacvezető szereplője. A saját ajkai üzemben végzett gyártás, a precíziós CNC lézervágás és a professzionális festési technológia biztosítja, hogy minden egyes elem megfeleljen a legszigorúbb minőségi követelményeknek. A leendő tulajdonosok számára ez egyet jelent a biztonsággal: egy tőkeerős, megbízható partner felügyeli a folyamatot a tervezéstől egészen a kulcsrakész átadásig, ahol a határidő valóban szent.
Ebben a mobilházban a gondtalan pihenés nem csak ígéret, hanem a mindennapok valósága, ahol a rezsiköltségek helyett csak a táj szépségére kell figyelnie.
Kérjen ingyenes konzultációt kollégánktól!
Alaprajz
Technológia
Szendvicspanel szerkezetű mobilházaink 3 és 4 évszakos kivitelben is elérhetőek. A 6x3m, 8x3m, 8x4m, 11x3m, 11x4m, mind standard méretek, ezutóbbi azaz a 44m2 alapterület a maximálisan elérhető, mint gyártástechnológiánk, mint szállíthatósági szempontok szerint. Áruk kiviteltől függően többnyire 228-450.000 Ft. / négyzetméter között alakul, az üres felszerelés nélküli alapár és a standard kivitel esetében.

A típusház kivitelezője:

Hasonló házak

Otthon Start Hitel
Akár 150 millió forintos családi házat is építhetsz, amire akár 50 milló forint hitelt is felvehetsz, 3%-is fix kamattal!